Premium New development
Retour aux Résultats

Appartement de 2 chambres à vendre à Tsada

Tsada, Paphos, Chypre

€840 000  [£733 368]

Appartement de 2 chambres à vendre à Tsada

Tsada, Paphos, Chypre

€840 000  [£733 368]

Détails du bien immobilier


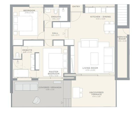
  • Chambres: 2
  • Salles de bain: 2
  • Surface habitable: 90 m2

Caractéristiques


  • Mountain View
  • Solar Water Heater
  • Smart Home

Description complète


Beautiful two bedroom apartment boasting amazing panoramic views near the village of Tsada, Paphos overlooking one of the region's golf resorts surrounded by wonderful countryside.

The split-level apartment features a spacious open plan fully fitted kitchen with Italian design cabinets and a dining/living room opening out to a large uncovered veranda with steps up to a covered veranda. The perfect place to enjoy alfresco dining and relaxing with family and friends.

Stepping up from the living room an inner hallway leads to the two generously sized bedrooms both benefitting from fitted wardrobes and ensuite showers with glass screens. The large master bedroom also has doors to the covered veranda.

The nearby golf resort has many facilities on offer with more being added over the coming two years. Residents are offered the option to pay an annual fee for the use of the amenities which includes a spa, hair salon, indoor pool and fully equipped gym. There are also restaurants and bars together with various shops and an art gallery. Also available around the resort will be tennis courts, mini-football pitch as well as horse riding and mountain bike trails.

The development has an inviting communal pool set in landscaped gardens with surrounding sun terraces perfect for soaking up the Mediterranean sunshine before taking a cooling dip.

Ideal investment opportunity for discerning buyers seeking a permanent residence away from the hustle and bustle of the tourist areas, which is especially attractive to keen golfers. Alternatively, the property could be a fabulous holiday home with excellent rental potential.

Tsada is a relatively large village 8km north of Paphos city centre nestled on the hillside and summit of the local mountain range at an altitude of approximately 600 metres above sea level. The elevation difference between Paphos Town and Tsada gives the area a totally different identity. The climate is much cooler all year long which is a welcome change during the humid summer months. The village also offers exceptional views from all directions. Tsada is a very active and growing village, it has been bolstered in recent years by the development of several high-end luxurious villas leading to a good balance of Cypriots and expatriates. There are tavernas, restaurants, coffee shops, supermarkets and a golf course all available locally.
Plus

La carte peut ne pas indiquer l'emplacement exact

Cette annonce immobilière (réf: 2219) est fournie par KW Seven Paphos et ne constitue pas nécessairement une description précise d’un bien particulier. Bien que aplaceinthesun.com (APITS Ltd.) demande à tous les annonceurs de fournir des informations correctes, il ne vérifie pas les informations fournies et ne peut être tenu responsable pour quelque erreur que ce soit. Aplaceinthesun.com recommande de solliciter un avis juridique indépendant avant tout achat de bien immobilier à l'étranger.