Premium New development
Retour aux Résultats

Un hôtel à vendre à Faro City

Faro City, Algarve, Portugal

€3 500 000  [£3 055 701]

Un hôtel à vendre à Faro City

Faro City, Algarve, Portugal

€3 500 000  [£3 055 701]

Détails du bien immobilier


  • Chambres: 0
  • Salles de bain: 150
  • Surface du terrain: 146915 m2
  • Surface habitable: 8327 m2

Caractéristiques


  • Double Verre
  • Certificat de performance énergétique – Exempt

Description complète


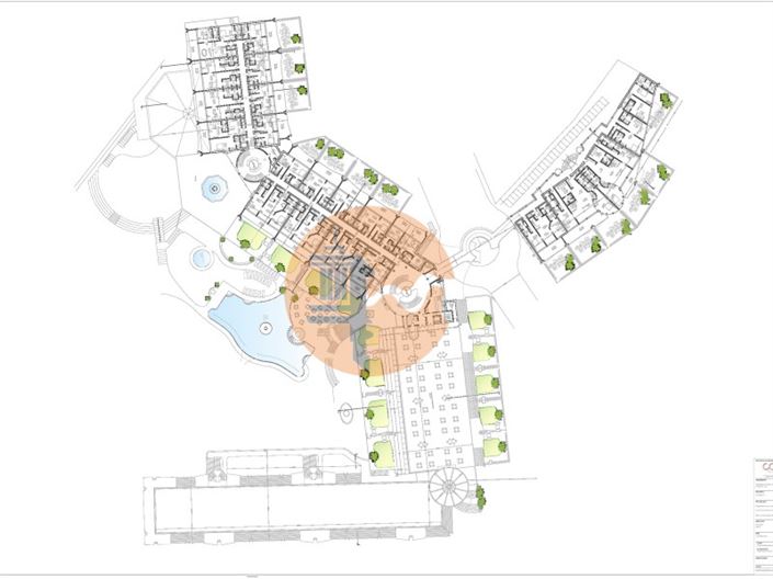
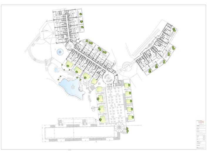
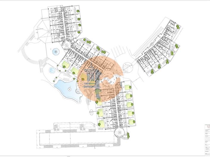
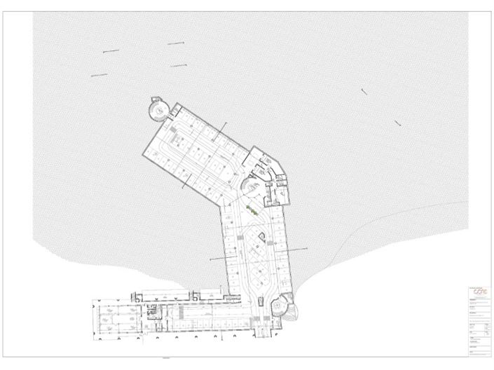
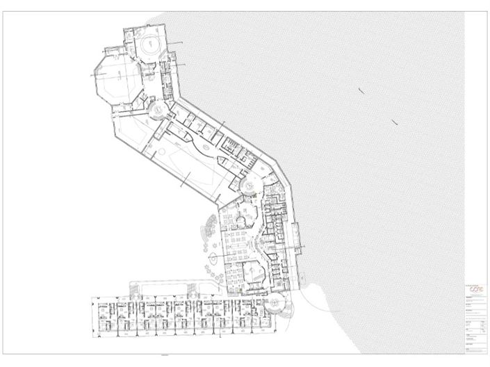
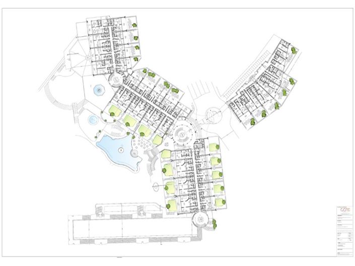
Projet approuvé, par la municipalité de Faro, pour la construction d'un hôtel de 146 chambres, d'un appart-hôtel de 83 appartements et d'un parcours de golf de 9 trous, à seulement 10 minutes du centre historique de Faro, de la plage et de l'aéroport international, dans la capitale du district.
La valeur d'investissement pour le projet hôtelier, approuvé par la municipalité de Faro, est de 8 millions d'euros plus les coûts de construction estimés à 60 millions d'euros.
La taille du lot est d'environ 146 915 m2, y compris le déploiement de l'hôtel avec 8327 m2.
L'Appart-Hôtel disposera de 83 Appartements et 146 Chambres d'Hôtel.
La propriété dispose d'une incroyable forêt de pins, idéal un parcours de golf de 9 trous et un lac artificiel ou une piscine écologique.
L'aéroport de Faro et un héliport sont à plus de 10 minutes.
Performance Énergétique: Exempt
#ref: CS-HOT-85155
Plus

La carte peut ne pas indiquer l'emplacement exact

Cette annonce immobilière (réf: CS-HOT-85155) est fournie par Around the Sun Lda et ne constitue pas nécessairement une description précise d’un bien particulier. Bien que aplaceinthesun.com (APITS Ltd.) demande à tous les annonceurs de fournir des informations correctes, il ne vérifie pas les informations fournies et ne peut être tenu responsable pour quelque erreur que ce soit. Aplaceinthesun.com recommande de solliciter un avis juridique indépendant avant tout achat de bien immobilier à l'étranger.