Premium New development
Retour aux Résultats

Villa de 4 chambres à vendre à Leivadia

Leivadia, Larnaca, Chypre

€680 000  [£593 679]

Villa de 4 chambres à vendre à Leivadia

Leivadia, Larnaca, Chypre

€680 000  [£593 679]

Détails du bien immobilier


  • Chambres: 4
  • Salles de bain: 4

Description complète


Four Bedroom Detached Villa For Sale in Livadia, Larnaca - Title Deeds (New Build Process)

Not more than 5 minutes drive from Larnaca town centre, our residential project is located in an established residential area, 200m from the beach. The project is composed of 75 residential plots, an area which has been identified for high growth potential and future development gains. These Residences come with the option of five designs, internal layouts and external finish. Great luxury options are featured comprising open plan living areas which can be modified to suit the purchases needs, kitchen/dining area, guest toilet, pantry and storage area, master bedroom with en-suite and main bathroom. The project uses a unique combination of glass, stone and timber to appeal to the new home buyer. This new development has the option of private swimming areas. The Villas have private gardens and double parking areas. They are situated within easy access to the highways leading to all major towns.

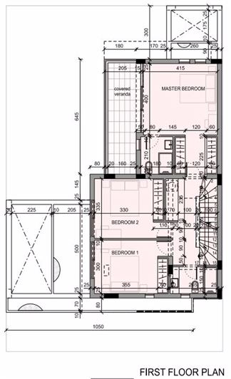
- 1 Master bedroom with ensuite, walk in wardrobe and private veranda

- 2 Bedrooms with fitted wardrobes

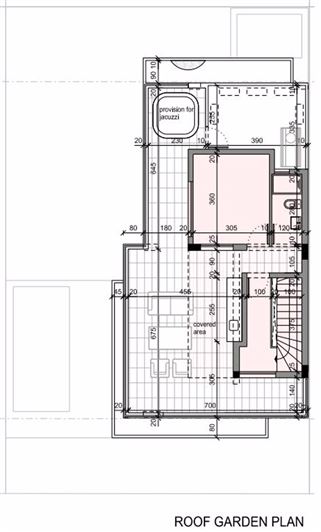
- 1 Bedroom on roof level

- Open plan living / dining area

- kitchen

- 1 Family bathroom on the first floor

- 1 Shower room on the roof level

- 1 Guest W/C on the ground floor

- Provisions for air conditioning

- Unfurnished

- Spacious covered double parking area

- Optional private swimming area

- Optional roof garden

- Private landscaped gardens

- Internal 179 m²

- Veranda ground floor 21 m²

- Balcony first floor 13 m²

- Optional roof garden 53-58 m²

- Covered parking 30 m²

- Plot 236 m²

- Walking distance to the beach

- Close to local amenities

- 8 Minutes to Larnaca Town Centre

- 15 Minutes to Larnaca International Airport

- Suitable for Cyprus Permanent Residency - Fast Track

- Subject to VAT

- Energy Efficiency A

Larnaca

Larnaca is the home of Cyprus' main International Airport, close to the Salt Lake area, a place where you can watch Swan's and Flamingo's that live in the lake. On its coastal seafront, the café's and restaurants are peaceful. On the edge of Larnaca Bay the palm-lined seafront of Larnaca town bustles with cafes, tavernas, shops and bars. Historic charm is lent to the scene by its fortress castle, now used as the town's summer cultural centre. Larnaca is an excellent base from which to get to know the central and eastern section of Cyprus, and its proximity to the International Airport and a number of luxury hotels that have been developed along its beautiful sandy beaches make this a popular holiday choice. Larnaca is the modern gateway to Cyprus, known for such sights as the beautiful St. Lazarus Church and leisurely Palm Tree Promenade.

Work has now started on the vast project of the "Land of Tomorrow that will transform one of the largest areas of Larnaca, improving the image not only locally but also Cyprus at the international level. The Land of Tomorrow project will provide new and important investment opportunities in the areas of entrepreneurship, tourism, culture, innovation and the environment in Cyprus.
Plus

La carte peut ne pas indiquer l'emplacement exact

Cette annonce immobilière (réf: 11885747) est fournie par Cyprus Emerald et ne constitue pas nécessairement une description précise d’un bien particulier. Bien que aplaceinthesun.com (APITS Ltd.) demande à tous les annonceurs de fournir des informations correctes, il ne vérifie pas les informations fournies et ne peut être tenu responsable pour quelque erreur que ce soit. Aplaceinthesun.com recommande de solliciter un avis juridique indépendant avant tout achat de bien immobilier à l'étranger.