Premium New development
Retour aux Résultats

Villa de 5 chambres à vendre à Protaras

Protaras, Famagusta, Chypre

€1 500 000  [£1 309 586]

Villa de 5 chambres à vendre à Protaras

Protaras, Famagusta, Chypre

€1 500 000  [£1 309 586]

Détails du bien immobilier


  • Chambres: 5
  • Salles de bain: 4

Description complète


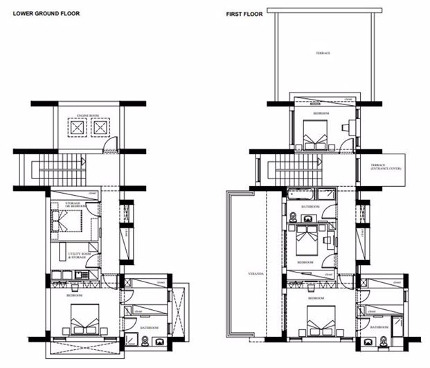
Five Bedroom Detached Villa For Sale in Protaras, Famagusta - Title Deeds (New Build Process)

A small complex consisting of just 6 villas located between Protaras and Cape Greco, just 150m walk to the nearest beach. Each villa has spacious open plan living, dining and kitchen areas, five double bedrooms, a walk-in closet, ensuite facilities and a family bathroom and a separate basement that can be used a maid's quarters, guest accommodation or office space. Outside there are landscaped gardens, covered car port, Outdoor jacuzzi, outdoor grill and BBQ area and a private 10 x 5 swimming pool. Each property will also have access to a private balcony where you can enjoy the stunning sea views.

- Master bedroom with ensuite facilities and walk in closet

- 2 Double bedrooms with fitted wardrobes 

- 1 Double bedroom with ensuite facilities and walk in closet on the lower ground floor

- 1 Double bedroom with fitted wardrobes on the lower ground floor

- Open plan living, dining and kitchen with sliding doors leading out onto the veranda

- Fully fitted kitchen with high quality finishes

- Family bathroom

- Guest W/C

- Utility room on lower ground floor

- Unfurnished

- VRV system for heating and cooling

- Underfloor heating

- Thermal insulation

- Lighting controls

- Indoor & outdoor sound system

- Fire alarm

- Security alarm system with cameras

- Outdoor bar

- Outdoor grill and BBQ area

- Outdoor jacuzzi

- Private swimming pool

- Outdoor shower area

- Landscaped gardens 

- Irrigation system

- Gated complex entrance

- Double car port

- Internal area 431 - 441 m²

- Ground floor covered veranda 40 - 43 m²

- Ground floor uncovered veranda 8 - 9 m²

- First floor covered veranda 9 - 10 m²

- First floor uncovered veranda 24 - 26 m²

- Covered parking 36 - 41 m²

- Swimming pool 10m x 5m

- Plot size 710 - 779 m²

- 150m walk to the nearest beach

- 3 Minutes to the local shops and amenities

- 14 Minutes to Ayia Napa

- 48 Minutes to Larnaca International Airport

- Suitable for Cyprus Permanent Residency - Fast Track

- Subject to VAT

- Energy Efficiency A

Protaras

Protaras is a popular tourist resort, well known for its beautiful golden white sandy beaches, especially Fig Tree Bay with its old lone fig tree, and clear sky blue waters. A beautiful purpose built coastal boardwalk links Protaras to adjoining resorts, secluded coves & beachside tavernas & cafes. To the northwest, atop a rock, you will find the limestone Church of Profitis Ilias (Agios Elias) with breath taking views across the bay. There is a wide choice of hotels & self catering accommodation with a vast selection of restaurants, traditional tavernas, bars & coffee shops, making this a great area for investment for the tourist market.
Plus

La carte peut ne pas indiquer l'emplacement exact

Cette annonce immobilière (réf: 12064064) est fournie par Cyprus Emerald et ne constitue pas nécessairement une description précise d’un bien particulier. Bien que aplaceinthesun.com (APITS Ltd.) demande à tous les annonceurs de fournir des informations correctes, il ne vérifie pas les informations fournies et ne peut être tenu responsable pour quelque erreur que ce soit. Aplaceinthesun.com recommande de solliciter un avis juridique indépendant avant tout achat de bien immobilier à l'étranger.