Premium New development
Retour aux Résultats

Villa de 6 chambres à vendre à Peyia

Peyia, Paphos, Chypre

€4 830 000  [£4 216 867]

Villa de 6 chambres à vendre à Peyia

Peyia, Paphos, Chypre

€4 830 000  [£4 216 867]

Détails du bien immobilier


  • Chambres: 6
  • Salles de bain: 8
  • Surface du terrain: 2319 m2

Description complète


ENCHANTING 6 BEDROOM VILLA WITH PRIVATE POOL & LANDSCAPED GARDEN

FOR SALE IN PEYIA

OFF PLAN

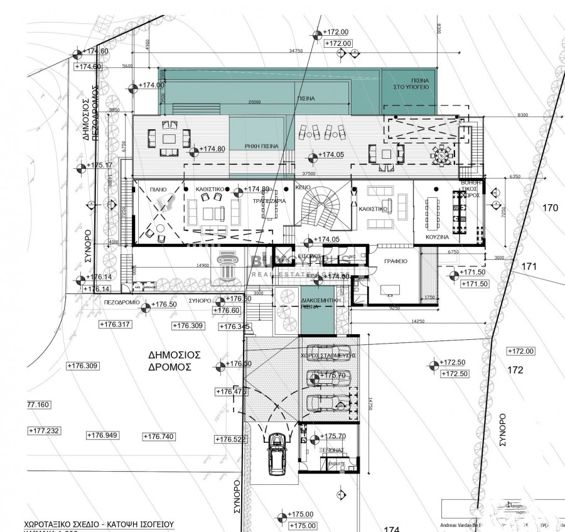
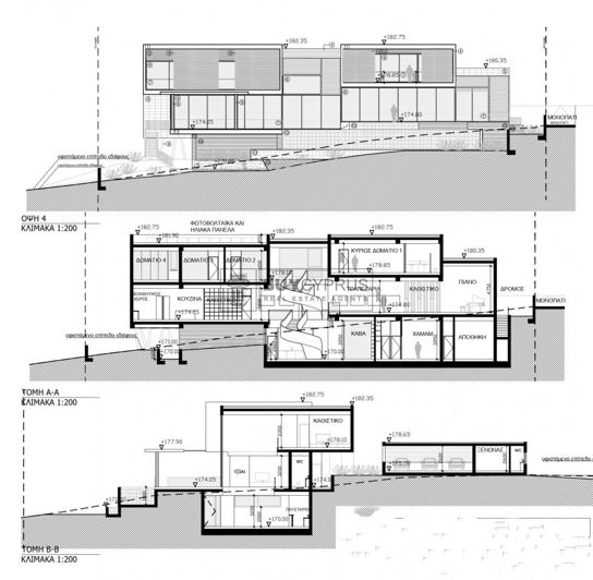
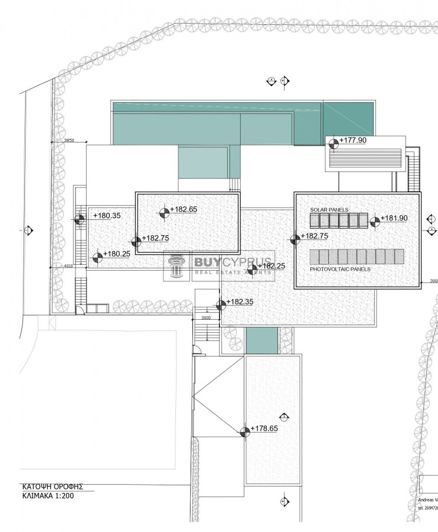
Presenting a truly unparalleled offering: a world-class modern mansion boasting 6 bedrooms, now available for sale in the captivating Peyia, Cyprus. This exceptional villa takes its place upon an expansive plot of 2319 m2, a testament to grandeur, while its covered areas of 1372.2 m2 define a new dimension of luxury living.

Beyond its imposing dimensions, this villa is an epitome of refined exclusivity. The harmonious fusion of architectural brilliance and natural beauty is manifested through its captivating waterfall features that greet you upon arrival. A private swimming pool beckons as the heart of the outdoor haven, accompanied by sprawling terraces that entice relaxation and al fresco indulgence.

Step inside to discover a realm of elegance and sophistication. The interiors, characterized by their expanse, are adorned with finishes that exemplify state-of-the-art luxury. Each corner tells a story of meticulous craftsmanship, where every detail has been considered to evoke a sense of opulence and comfort.

The pièce de résistance of this mansion lies not just within its walls, but in the vistas it commands. Behold, as each day unfolds, the breathtaking panorama of the boundless Mediterranean Sea unfolds before you, a canvas of azure meeting the sky. The surrounding landscapes contribute to the picturesque allure, forming a visual symphony that complements the architectural masterpiece.

Location plays a pivotal role in this proposition. Villa Superior enjoys the best of both worlds - the renowned blue-flag sandy beaches of Coral Bay beckon just moments away, offering an indulgent escape to crystalline waters and sun-kissed sands. Equally accessible are the awe-inspiring landscapes of the Akamas National Park, a realm of natural wonders that await exploration and adventure.

In summary, Villa Superior stands as an embodiment of luxury, a modern mansion that defies conventions and sets new standards. With its expansive dimensions, thoughtful finishes, and the privilege of commanding panoramic views, it presents an opportunity to reside in the pinnacle of refinement. Immerse yourself in a life where opulence knows no bounds and every aspect speaks of exclusivity, where the Mediterranean's embrace and the wonders of nature converge to create an unrivaled living experience.

Peyia is a town in Cyprus with population approximately 10,000 residents. Peyia is situated mainly on the coastal hills inland from Coral Bay, at the southern end of the Akamas Peninsula, and it lies 14 km north of Paphos. It has a good population of British ex-pats and a growing number of holiday and residential homes and apartments. In the town centre can be found a town hall, church, police station and several small shops, restaurants and banks. Due to its amazing hillside location many parts of the town offer Panoramic sea views over Coral Bay and Paphos.

Peyia actually covers a large area stretching from the Peyia Forest on the hills high above the village in the north, to the sea in the south, and from the Bay of Maa in the east to the Akamas Peninsula in the west. However the name is used more frequently in respect to the town.

Peyia, like many other towns in the Paphos region, has a large number of cafes and restaurants. More places to eat are being opening suggesting there is no shortage of demand. These range from taverns, meze houses and traditional cafes, to themed restaurants . The closes traditional village is Kathikas, which again has an impressive range of eateries, and the Vasilikon and Sterna Winery.

Buy Cyprus LTD a leading and esteemed fully accredited Estate Agent, proudly holding registration number 1014 with the Cyprus Real Estate Agents Association and license number 477/E. With nearly three decades of unwavering commitment in the Cyprus and UK real estate markets, Buy Cyprus stands as the epitome of trustworthiness, offering top-tier expert services.

Paphosproperties has seamlessly integrated with Buy Cyprus LTD, becoming an integral part of our number one leading agency. Together, we share in this legacy of excellence, with our unwavering focus on exceeding customer expectations. We ensure that both buyers and sellers receive unparalleled care and dedication, drawing upon our profound understanding of the Cyprus Real Estate Market to provide objective and impartial advice to our esteemed clientele. With utmost transparency, we deliver honest and precise property information, empowering you to make well-informed decisions with absolute confidence.

Plus

La carte peut ne pas indiquer l'emplacement exact

Cette annonce immobilière (réf: BC74501) est fournie par Buy Cyprus et ne constitue pas nécessairement une description précise d’un bien particulier. Bien que aplaceinthesun.com (APITS Ltd.) demande à tous les annonceurs de fournir des informations correctes, il ne vérifie pas les informations fournies et ne peut être tenu responsable pour quelque erreur que ce soit. Aplaceinthesun.com recommande de solliciter un avis juridique indépendant avant tout achat de bien immobilier à l'étranger.