Premium New development
Retour aux Résultats

Masseria à vendre à Monopoli

Monopoli, Bari, Les Pouilles, Italie

€1 395 000  [£1 217 915]

Masseria à vendre à Monopoli

Monopoli, Bari, Les Pouilles, Italie

€1 395 000  [£1 217 915]

Détails du bien immobilier


  • Chambres: 0
  • Salles de bain: 0
  • Surface habitable: 1200 m2

Description complète


Key features

HISTORIC building to develop

Attractive PRIME location in Monopoli Old Town

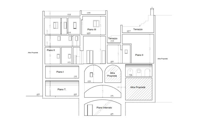
Roof terrace of 250 sqm with panoramic SEA VIEW

Fantastic INVESTMENT OPPORTUNITY: could create 12 Apartments

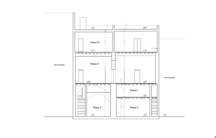
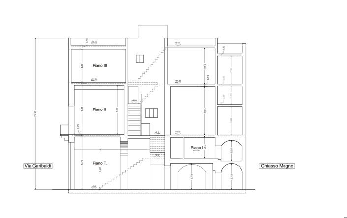
Three floors with a total of 1,240 sqm

48 km to Bari

Positioned in the middle between the two airports of Puglia, Bari and Brindisi, serving many international airlines.

PROPERTY DESCRIPTION:

A one-of-a-kind investment opportunity to own a part of Italian history!

For sale in the medieval harbour town of Monopoli, today’s most vibrant town on everybody’s lips in Puglia, is this imposing aristocratic Palais in the very centre of the charming Old Town.

12 apartment units could be created in this magnificent palazzo, which is located almost adjacent to the town hall in the pedestrian zone, and only 2 minutes walk to the public parking in the most central square.

The PALAZZO GARIBALDI dates back to the 1600s, to the time when the city was founded and was under Spanish rule. It was inherited by the current owners a decade ago and cleaned of its plasterwork.

The Palazzo spans over three floors with a total of 1.240 sqm and has a stunning roof top terrace with a panoramic view from the church spires to the seaside.

Technical:

2 water cisterns and 1 well

Total surface area: 1.240 sqm, made up by:

Ground floor: 261 sqm

First floor: 292 sqm

Second floor: 314 sqm + balconies

Mezzanine floor: 34 sqm

Third floor: 246 sqm + 63 sqm veranda

Basement: 90 sqm

Roof top terrace: 250 sqm

DISTANCES:

48 km to Bari, the capital of Puglia

45 mins to Bari International airport

45 mins to Brindisi airport

LOCATION:

Guarding the entrance to Monopoli’s ancient harbour, the 16th-century  Castello Carlo V  is an impressive sight. It’s one of the most iconic places to visit in Monopoli and offers incredible views of the old city and out to sea. For centuries, the castle was used as a jail and a defensive fortress, but today it’s open to the public and serves as a museum.

Monopoli is blessed with a wonderful coastline and there are plenty of lovely beaches to choose from. With calm, crystal-clear waters and year-round sunshine, it’s a great place for taking a dip in the sea or just relaxing in the sun. Cala Porta Vecchia, for example, is located on the southern edge of the old town. It’s sheltered inside a small bay and has a stunning backdrop with iconic views of the city walls and the whitewashed old town.

One of the most impressive things to see in Monopoli,  is the Cathedral Maria Santissima della Madia which dates back to the 12th century. It was constructed near the site of an ancient Roman temple and took over 300 years to build from start to finish.

The area around Monopoli is a patchwork of ancient villages, fortified farmhouses, rock churches, historical mills, and olive groves. It’s also fairly flat, making it a perfect place to explore by bike.

From Monopoli, the beaches of the Adriatic Sea can be easily reached in approximately 15 minutes. Capitolo and Savelletri are two seaside places with many beaches, restaurants and cafés.

Bari is the commercial capital city with 250 000 inhabitants and offers the best shopping, a grand opera house called the Petruzzelli teatro; a large medical city centre with many museums.

The property has the advantage of being not far from main areas of world interest such as the amazing mile-long caves of Castellana; the archaeological excavations of the Roman Egnatia by the Adriatic coastline; the Trulli houses of Alberobello- a UNESCO World Heritage site: the beautiful white town of Ostuni, located on top of a hill with fantastic sea views; the medieval town of Oria; the wealthy baroque town of Martina Franca; the petite and charming Cisternino, the Zoo Safari Park of Fasano (lots of fun for children and adults alike); the caves of Polignano a Mare; Grottaglie, famous for its ceramics and old stone carvings; and last but not least the famous baroque city of Lecce which is called the Florence of the South.

GETTING THERE:

By air there is a choice of two international airports, served by Ryanair, Easyjet , BA and others, both easily reached; Bari in the North and Brindisi in the South, by car on the motorway in about 50 minutes (approx. 60 km) .

WHY BUY IN APULIA?

Apulia has until recently been called the hidden treasure of Italy, unknown to most tourists who come & stay in Rome, Florence, Venice and at the Italian Riviera. However, all this is rapidly changing because of massive investments in the infrastructure, such as the improved motorways, enlarged airports and the introduction of low-cost airlines such as Ryanair and Easyjet. The property prices are low in Apulia and low means value for money at bargain prices for international buyers. We see more and more foreign visitors coming to Apulia and in our opinion investments will show good growth in value because of the increased demand, also from north Italians as Apulia has become the most popular holiday destination for Italians. But rest assure, no tourist villages will ever be built because in Apulia the coastline is protected and people are against modern developments which do not fit into this historical landscape. Therefore, with increased demand for a fixed and limited number of properties, prices are bound to rise.

WHY BUY FROM CASAPUGLIA?

Firstly, we are an English-speaking agency based in the middle of Apulia with local experience and can guide you to get the right property at the right price for you.

Secondly, we have personally inspected every property that we recommend to buy and do not list hundreds of properties but a smaller selection of properties which we believe offer good value to the buyer.

We have many years of international property experience, including 10 years in London, and see investments in Apulia through an international perspective. We have been active in several EU property markets and specialize in property management to ensure well-maintained properties for growth in property value.

We have a comprehensive range of local services:

- Acting for the buyer - and not for the seller - by searching the market for the right property, negotiating the price and advise on the buying process, leading to the completion of the purchase

- Property Management: we look after your property when you are away and ensure it is in perfect condition when you arrive. We will prepare a maintenance plan for annual maintenance and repairs of your property, which is essential to maintain and increase the property's value

- Project Management: we can be your local representative and manage any renovation or refurbishment. We will also advise on any value-added measures that could further enhance your property's capital growth.

- Lettings:  we can assist you in the letting of your property and check in your tenants, deposit taking, checking out & inventory control.

Refer also to our website casapuglia.com

We look forward to meet you soon!
Plus

La carte peut ne pas indiquer l'emplacement exact

Cette annonce immobilière (réf: RH-27525-property) est fournie par CasaPuglia et ne constitue pas nécessairement une description précise d’un bien particulier. Bien que aplaceinthesun.com (APITS Ltd.) demande à tous les annonceurs de fournir des informations correctes, il ne vérifie pas les informations fournies et ne peut être tenu responsable pour quelque erreur que ce soit. Aplaceinthesun.com recommande de solliciter un avis juridique indépendant avant tout achat de bien immobilier à l'étranger.