Premium New development
Retour aux Résultats

Villa de 3 chambres à vendre à Naxos

Naxos, Îles Égéennes, Grèce

€580 000  [£506 373]

Villa de 3 chambres à vendre à Naxos

Naxos, Îles Égéennes, Grèce

€580 000  [£506 373]

Détails du bien immobilier


  • Chambres: 3
  • Salles de bain: 3
  • Surface du terrain: 174 m2
  • Surface habitable: 144 m2

Description complète


Spacious 3 Bedroom villa in a complex of modern and uniquely designed properties at the area of Galanado, Naxos offering coastal views.

The project comprises of 4 houses with their own private garden and pool. Design embraces sustainability, ensuring that all houses have proper cross ventilation and lighting that helps to reduce operating costs. The cool northern breeze, along with properly shaded spaces, offers the perfect spot to relax and enjoy the sun during the summer. Produced by an innovative and creative design team, with international experience in the fields of architecture and design.

Galanado is located on the west side of Naxos. The settlement is in great proximity to the Chora of Naxos, almost 5km away, as well as located on the valley of Livadi, the main agricultural area of the island. In the surrounding area of Galanado lie unique architectural buildings, like the tower of Belonias built by Venetians and the church of the Holy Spirit, constructed in 1780.

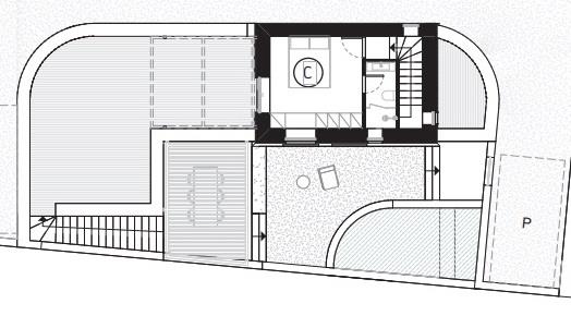
Villa C features:

Coastal views

2 Floors

Inner area: 144 sqm

Plot: 174 sqm

3 Bedrooms

3 Bathrooms

Guest WC

Veranda

Private pool

Garden

Parking Space

Price: 580.000€
Plus

La carte peut ne pas indiquer l'emplacement exact

Cette annonce immobilière (réf: Galanado C) est fournie par Solid Estate et ne constitue pas nécessairement une description précise d’un bien particulier. Bien que aplaceinthesun.com (APITS Ltd.) demande à tous les annonceurs de fournir des informations correctes, il ne vérifie pas les informations fournies et ne peut être tenu responsable pour quelque erreur que ce soit. Aplaceinthesun.com recommande de solliciter un avis juridique indépendant avant tout achat de bien immobilier à l'étranger.