Premium New development
Retour aux Résultats

Commercial à vendre à Mafra

Mafra, Lisbonne, Portugal

€252 000  [£220 010]

Commercial à vendre à Mafra

Mafra, Lisbonne, Portugal

€252 000  [£220 010]

Détails du bien immobilier


  • Chambres: 0
  • Salles de bain: 1
  • Surface habitable: 240 m2

Caractéristiques


  • Double Verre
  • Air Conditionné
  • Certificat de performance énergétique – D

Description complète


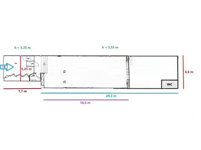
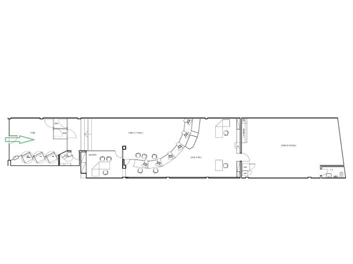
Magasin fonctionnel de plus de 230m2 dans le centre de Malveira, Mafra.
Le magasin commercial, qui servait autrefois de succursale bancaire, a une forme rectangulaire avec des dimensions approximatives de 37 x 6,7 mètres. Excellentes hauteurs sous plafond, entre 3,25 mètres à l'entrée, et 3,6 mètres à l'intérieur du magasin.
Il dispose de la climatisation, d'une bonne alimentation électrique,...
Excellent emplacement dans le centre de Malveira, à côté de la gare (CP), dans un quartier résidentiel bien desservi par le commerce, les services et les transports. L'autoroute n'est qu'à 2 minutes.
Excellente centralité, proche de Mafra, à seulement 15 minutes d'Ericeira, 15 minutes de Loures, 20 minutes de Lisbonne et Torres Vedras.
Venez rencontrer et développer son activité...
Performance Énergétique: D
#ref: BOT_4007
Plus

La carte peut ne pas indiquer l'emplacement exact

Cette annonce immobilière (réf: BOT_4007) est fournie par Carpe Domus et ne constitue pas nécessairement une description précise d’un bien particulier. Bien que aplaceinthesun.com (APITS Ltd.) demande à tous les annonceurs de fournir des informations correctes, il ne vérifie pas les informations fournies et ne peut être tenu responsable pour quelque erreur que ce soit. Aplaceinthesun.com recommande de solliciter un avis juridique indépendant avant tout achat de bien immobilier à l'étranger.