Premium New development
Retour aux Résultats

Terre à vendre à Tivat

Tivat, Monténégro

€99 000  [$116 261]

Terre à vendre à Tivat

Tivat, Monténégro

€99 000  [$116 261]

Détails du bien immobilier


  • Chambres: 0
  • Salles de bain: 0
  • Surface du terrain: 553 m2

Description complète


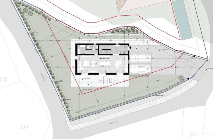
A beautiful plot is for sale in the sunny village of Mrkovi, Luštica. The plot is ideal for building a villa and comes with complete permits and paid utilities for a three-bedroom, two-story house with a pool, covered terrace, and parking space.
The project includes a spacious living room, kitchen, and dining area on the ground floor, with three bedrooms on the upper floor, each with its own bathroom. The plot is west-facing, offering partial sea views.

Plot Details:
- Area: 553 m²
- Total Gross Building Area: 169.40 m²
- Floors: Ground + 1
- Net Usable Area of Above-Ground Floors: 126.98 m²

The plot is sold with the main project, all necessary permits, and paid utilities, allowing the buyer to start construction immediately.

It is also possible to purchase two adjoining plots, which come with Urban-Technical Conditions (UTU) for villa construction, offering further development opportunities.
Plus

La carte peut ne pas indiquer l'emplacement exact

Cette annonce immobilière (réf: 14153) est fournie par Montenegro Prospects DOO et ne constitue pas nécessairement une description précise d’un bien particulier. Bien que aplaceinthesun.com (APITS Ltd.) demande à tous les annonceurs de fournir des informations correctes, il ne vérifie pas les informations fournies et ne peut être tenu responsable pour quelque erreur que ce soit. Aplaceinthesun.com recommande de solliciter un avis juridique indépendant avant tout achat de bien immobilier à l'étranger.