Premium New development
Retour aux Résultats

Maison de 3 chambres à vendre à Mazotos

Mazotos, Larnaca, Chypre

€1 650 000  [£1 440 545]

Maison de 3 chambres à vendre à Mazotos

Mazotos, Larnaca, Chypre

€1 650 000  [£1 440 545]

Détails du bien immobilier


  • Chambres: 3
  • Salles de bain: 3
  • Surface du terrain: 534 m2
  • Surface habitable: 133 m2

Description complète


Dreaming, Beachfront Villa of Three Bedrooms for Sale in Mazotos, Larnaca. The property is situated less than 50 meters from the sea. Situated in a luxurious complex of apartments and villas surrounded by greenery. Mazotos village provides all amenities such as supermarket, school, restaurants and cafes. International airport of Larnaca is 14 km away.

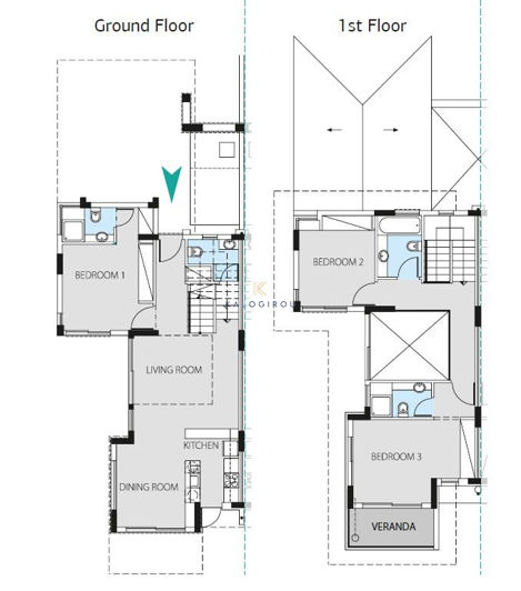
Villa for sale in Larnaca, Mazotos area. The property is built in a 534 sqm plot and has internal covered area of 133 sqm. On the ground floor, the house consists of a living, kitchen, dining area as an open space, a guest wc and one bedroom with en suite shower & wc. Internal stairs lead to the upper floor which consists of a main bathroom with tub, 2 bedrooms, master bedroom is en suite with shower and has access to a covered veranda.

Externally, the house consists of a large garden (342 sqm), swimming pool and covered parking.

The complex features an outdoor common swimming pool The complex features an outdoor common

swimming pool, a jacuzzi, a fitness center, landscaped gar-dens, a 24/7 security guard, and a beach with free sunbeds and umbrellas. Wi-Fi and private parking is available free of charge. Each unit features apatio, a fully equipped kitchen with a coffee machine, mi-crowave, dishwasher, washing machine and flat-screen tv.

Extra: A/C, Large Garden, Swimming Pool, Covered Parking
Plus

La carte peut ne pas indiquer l'emplacement exact

Cette annonce immobilière (réf: 49978) est fournie par Kalogirou Real Estate et ne constitue pas nécessairement une description précise d’un bien particulier. Bien que aplaceinthesun.com (APITS Ltd.) demande à tous les annonceurs de fournir des informations correctes, il ne vérifie pas les informations fournies et ne peut être tenu responsable pour quelque erreur que ce soit. Aplaceinthesun.com recommande de solliciter un avis juridique indépendant avant tout achat de bien immobilier à l'étranger.