Premium New development
Retour aux Résultats

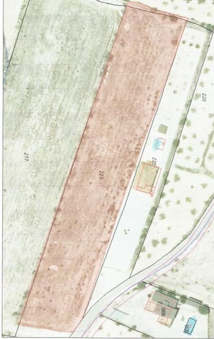
Terre à vendre à Hondón de los Frailes

Hondón de los Frailes, Alicante, Région de Valence, Espagne

€25 000  [£21 826]

Terre à vendre à Hondón de los Frailes

Hondón de los Frailes, Alicante, Région de Valence, Espagne

€25 000  [£21 826]

Détails du bien immobilier


  • Chambres: 0
  • Salles de bain: 0
  • Surface du terrain: 5971 m2

Description complète


. ¡Open to offers! Lovely plot for sale in Hondón de los Frailes (Alicante). Very good location, only 10 minutes walk to the village. Amazing views all around . Acces via tarmac road. Front wall and gate ready. 

Please, contact us for more information.

Living in Hondon Valley

The Hondon valley is made up of quiet mountain villages in the inland of Alicante with a lot of charm. The most populated areas are Hondón de los Frailes and Hondón de las Nieves. A few kilometres from Alicante airport and the wonderful beaches of the Costa Blanca, you will find a varied and complete offer of comfort, gastronomy, sport, culture and tranquillity, surrounded by an enormous natural beauty. A fertile area surrounded by mountains and fields in full production, whose main crops are almond trees, vines, olive trees and fruit trees. European residents mingle with local residents offering a multicultural atmosphere, but preserving the traditional essence. 
We are a family company started by two brothers, Gary and Mike. Alicante Property was started after relocating our own families to Spain, and now we help other people find a new life and their dream home in the sun.
We take pride in listening and understanding clients individual needs and tastes and matching the best properties to right people. Our business has evolved over the past 5 years from the successful locally based 'PinosoVillas' to the wider reaching 'AlicanteDreamHomes' based in Elda and 'AlicanteProperty' in Aspe.
Plus

La carte peut ne pas indiquer l'emplacement exact

Cette annonce immobilière (réf: AMHF-PLOT1) est fournie par Alicante Dream Homes et ne constitue pas nécessairement une description précise d’un bien particulier. Bien que aplaceinthesun.com (APITS Ltd.) demande à tous les annonceurs de fournir des informations correctes, il ne vérifie pas les informations fournies et ne peut être tenu responsable pour quelque erreur que ce soit. Aplaceinthesun.com recommande de solliciter un avis juridique indépendant avant tout achat de bien immobilier à l'étranger.