Premium New development
Retour aux Résultats

Maison de 2 chambres à vendre à Tomar

Tomar, Santarém, Portugal

€110 000  [£96 036]

Maison de 2 chambres à vendre à Tomar

Tomar, Santarém, Portugal

€110 000  [£96 036]

Détails du bien immobilier


  • Chambres: 2
  • Salles de bain: 2
  • Surface du terrain: 360 m2
  • Surface habitable: 142 m2

Caractéristiques


  • Double Verre
  • Certificat de performance énergétique – Exempt

Description complète


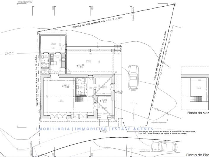
Si vous êtes à la recherche de l'espace idéal pour construire la maison de vos rêves, cette magnifique école primaire historique est peut-être l'endroit idéal.
Ancienne école primaire avec projet de reconstruction approuvé, pour un logement de 2 chambres.
Constitution du projet immobilier :
. 2 chambres, 1 des chambres en suite ;
. 1 salle de bain commune ;
. 1 salon ;
. 1 cuisine ;
. 1 zone de stockage ;
. Véranda;
. Terrasse.
Performance Énergétique: Exempt
#ref: 808/25
Plus

La carte peut ne pas indiquer l'emplacement exact

Cette annonce immobilière (réf: 808/25) est fournie par Chavetejo Estate Agents et ne constitue pas nécessairement une description précise d’un bien particulier. Bien que aplaceinthesun.com (APITS Ltd.) demande à tous les annonceurs de fournir des informations correctes, il ne vérifie pas les informations fournies et ne peut être tenu responsable pour quelque erreur que ce soit. Aplaceinthesun.com recommande de solliciter un avis juridique indépendant avant tout achat de bien immobilier à l'étranger.