Premium New development
Retour aux Résultats

Villa de 3 chambres à vendre à Geroskipou

Geroskipou, Paphos, Chypre

€495 000  [£432 163]

Villa de 3 chambres à vendre à Geroskipou

Geroskipou, Paphos, Chypre

€495 000  [£432 163]

Détails du bien immobilier


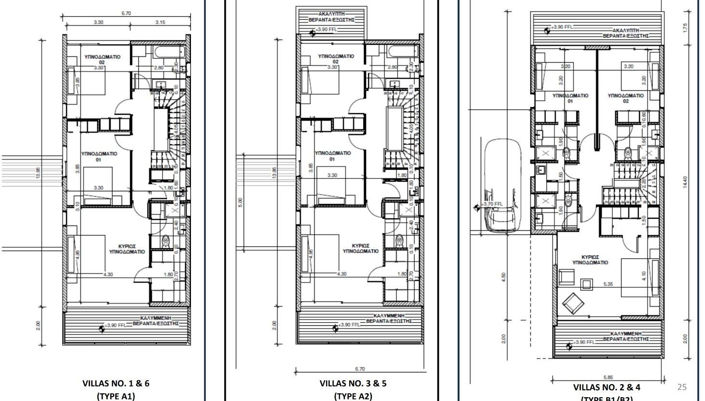
  • Chambres: 3
  • Salles de bain: 3
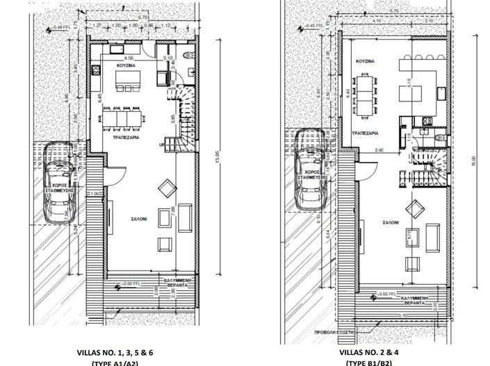
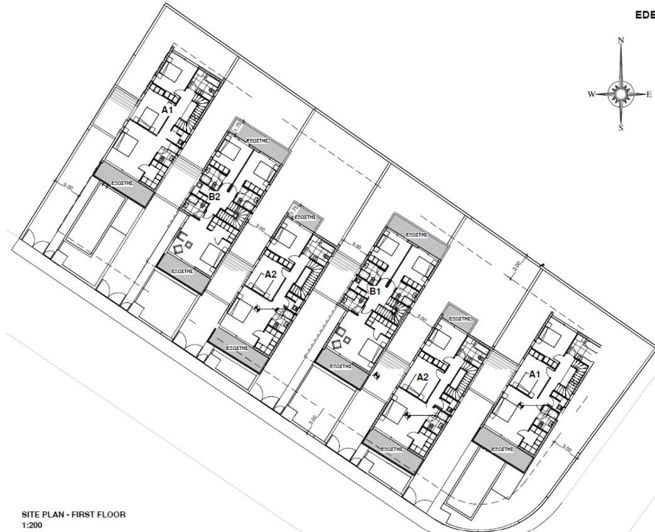
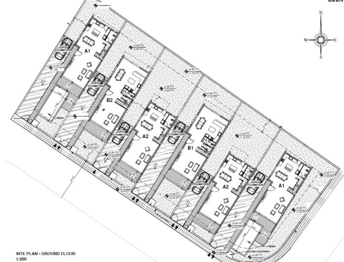
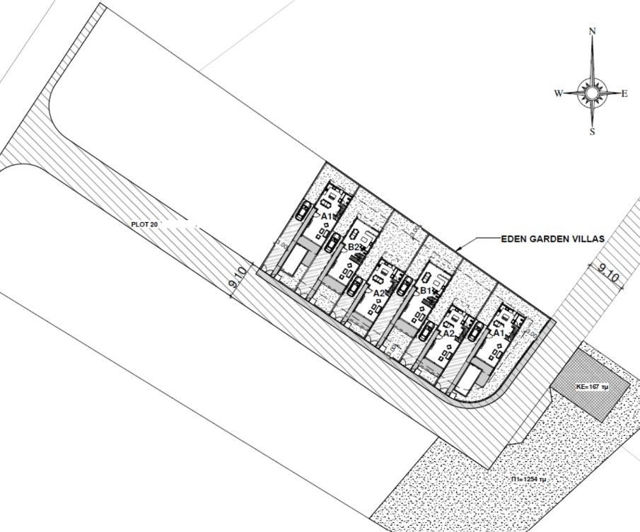
  • Surface du terrain: 290 m2
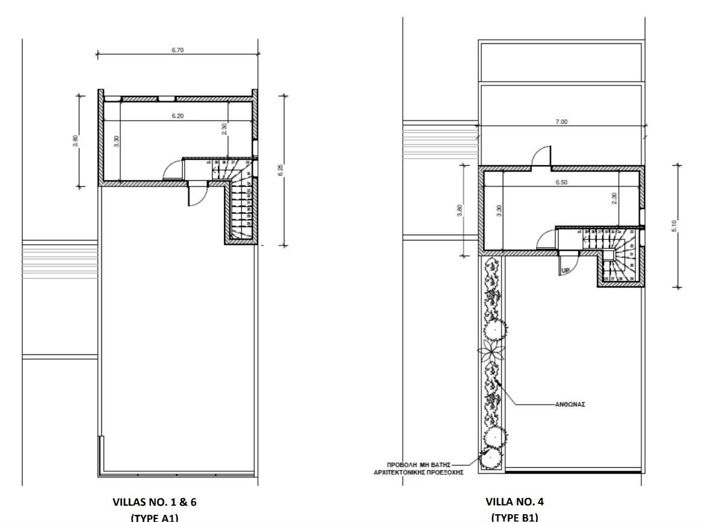
  • Surface habitable: 188 m2

Description complète


Spacious detached villa under construction in the sought-after area of Geroskipou. This modern property offers a generous internal space of 188 m2, thoughtfully designed for comfort and functionality.

The villa features three bedrooms and three bathrooms, providing ample space for families or those who love to entertain. With an energy efficiency rating of A, you can enjoy reduced utility costs and a more sustainable lifestyle. A central AC system ensures year-round comfort throughout the home.

Located in Geroskipou, a vibrant area known for its blend of tradition and modern living, residents can enjoy a relaxed atmosphere while being close to essential amenities. The area offers scenic mountain and sea views, giving you the best of both worlds. Sports enthusiasts will appreciate the proximity to a well-regarded golf course, while the nearby highway makes commuting easy and convenient.

Construction is expected to be completed in 2026, allowing you the opportunity to customize some aspects to your personal preferences. This property is proudly advertised by Aurea Properties, ready to assist you in making this modern villa your new home.
Plus

La carte peut ne pas indiquer l'emplacement exact

Cette annonce immobilière (réf: 1316) est fournie par Aurea Properties et ne constitue pas nécessairement une description précise d’un bien particulier. Bien que aplaceinthesun.com (APITS Ltd.) demande à tous les annonceurs de fournir des informations correctes, il ne vérifie pas les informations fournies et ne peut être tenu responsable pour quelque erreur que ce soit. Aplaceinthesun.com recommande de solliciter un avis juridique indépendant avant tout achat de bien immobilier à l'étranger.