Premium New development
Retour aux Résultats

Appartement de 2 chambres à vendre à Paphos

Paphos, Paphos, Chypre

€450 000  [£392 876]

Appartement de 2 chambres à vendre à Paphos

Paphos, Paphos, Chypre

€450 000  [£392 876]

Détails du bien immobilier


  • Chambres: 2
  • Salles de bain: 2
  • Surface habitable: 97 m2

Description complète


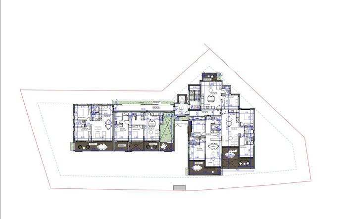
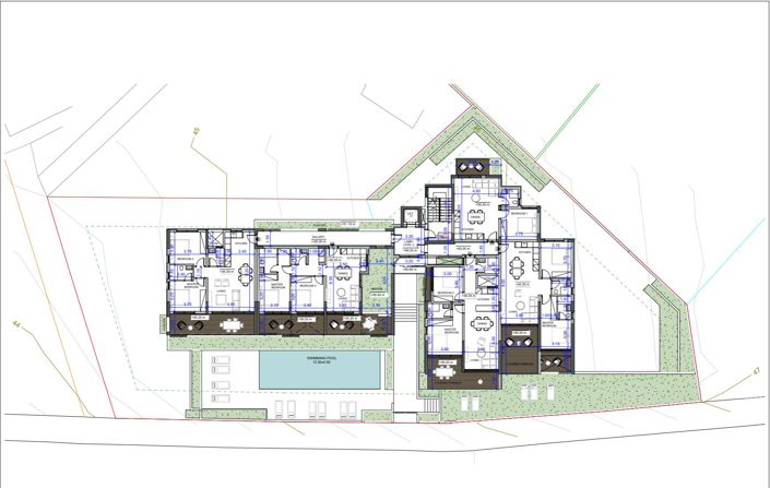
The development offers stunning sea views and is within walking distance of the beach, making it a prime location to enjoy the famous sunsets of Paphos. Residents will benefit from nearby amenities, including Aspire Private British School, supermarkets, restaurants, and a bus station. The project consists of 16 high-quality apartments with beautifully designed interiors and exteriors, providing both comfort and style in one of the most sought-after areas of the city.

Delivery - October 2026
Price+VAT
1st floor
Internal area - 77m2
Covered veranda - 20m2
Store room
Covered parking
Total covered - 97m2

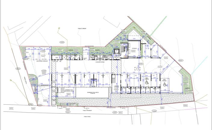
Project Features:
Concealed a/c system in all areas, Connected to VRV system
Underfloor heating
1 parking space(s)
Electrical Appliances
Outdoor pool
3 levels/stories
Sea view, Mountain view
Gym, Furnished lobby
Plus

La carte peut ne pas indiquer l'emplacement exact

Cette annonce immobilière (réf: AGGLM101) est fournie par Sunshine Luxury Villas et ne constitue pas nécessairement une description précise d’un bien particulier. Bien que aplaceinthesun.com (APITS Ltd.) demande à tous les annonceurs de fournir des informations correctes, il ne vérifie pas les informations fournies et ne peut être tenu responsable pour quelque erreur que ce soit. Aplaceinthesun.com recommande de solliciter un avis juridique indépendant avant tout achat de bien immobilier à l'étranger.