Premium New development
Retour aux Résultats

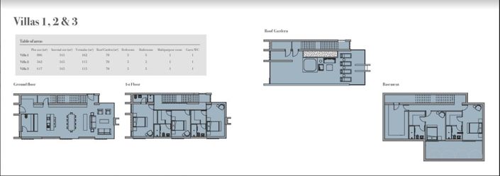
Villa de 3 chambres à vendre à Ayia Napa

Ayia Napa, Famagusta, Chypre

€3 300 000  [£2 881 090]

Villa de 3 chambres à vendre à Ayia Napa

Ayia Napa, Famagusta, Chypre

€3 300 000  [£2 881 090]

Détails du bien immobilier


  • Chambres: 3
  • Salles de bain: 3
  • Surface du terrain: 1055 m2
  • Surface habitable: 345 m2

Description complète


Luxury Seafront 3-Bedroom Villa in Ayia Napa

Elegant 3-bedroom seafront villa with 345 m² of covered space, private roof garden, and guest WC—set on a 1055 m² plot just steps from the beach in Ayia Napa.

Off plan
Estimated delivery: Q1 2027.
Price subject to VAT (5% VAT may apply under qualifying criteria).

Key Features:
??? Bedrooms: 3
?? Bathrooms: 3
?? Guest WC
?? Covered area: 345 m²
?? Roof garden: 70 m²
?? Plot size: 1055 m²
??? Covered parking included

Distances to Key Amenities:
??? Beach – 0 km
??? Shops – 1 km
??? Restaurants – 1 km
?? School – 5 km
?? Airport – 35 km

Positioned directly on the coastline of Ayia Napa’s eastern shore, this off-plan 3-bedroom villa offers a rare combination of spacious design, refined architecture, and uninterrupted sea views. Surrounded by the natural beauty of Cyprus’s east coast, the property is ideal for those seeking a permanent residence or a high-end holiday retreat with direct beach access and proximity to vibrant local amenities.

The villa boasts 345 m² of covered living space, thoughtfully arranged across three bedrooms, three bathrooms, and a guest WC. A private 70 m² roof garden provides a panoramic outdoor escape, while the generous 1055 m² plot ensures privacy, comfort, and room to breathe. Premium finishes, secure gated access, and a clean architectural layout elevate the living experience.

Delivery is expected within 16 months from signing, and the price is subject to VAT.

Located just steps from the beach and within walking distance of shops and restaurants, the villa also offers convenient access to schools (5 km) and the international airport (35 km).
Plus

La carte peut ne pas indiquer l'emplacement exact

Cette annonce immobilière (réf: CAT-OSFV1) est fournie par Sunshine Luxury Villas et ne constitue pas nécessairement une description précise d’un bien particulier. Bien que aplaceinthesun.com (APITS Ltd.) demande à tous les annonceurs de fournir des informations correctes, il ne vérifie pas les informations fournies et ne peut être tenu responsable pour quelque erreur que ce soit. Aplaceinthesun.com recommande de solliciter un avis juridique indépendant avant tout achat de bien immobilier à l'étranger.