Premium New development
Retour aux Résultats

Propriété de pays de 3 chambres à vendre à Civitanova Marche

Civitanova Marche, Macerata, Les marches, Italie

€800 000  [£698 446]

Propriété de pays de 3 chambres à vendre à Civitanova Marche

Civitanova Marche, Macerata, Les marches, Italie

€800 000  [£698 446]

Détails du bien immobilier


  • Chambres: 3
  • Salles de bain: 2
  • Consommation: G
  • Surface du terrain: 28000 m2
  • Surface habitable: 193 m2

Description complète


CIVITANOVA MARCHE - SEA VIEW FARMHOUSE WITH ANEXA AND LAND. FOR SALE.
In the Municipality of Civitanova Marche, exactly in Contrada Castelletta, Quattropareti offers for sale a rural complex consisting of a house, warehouses, barn and adjacent land.
The property, located in a quiet and panoramic area, consists of a house on two floors of approx. 210 dating back to the time of construction, of the warehouses / cellars of approx. 240, a detached barn of approx. 140, all with adjacent land of approx. 28,000 completely arable land.
The property has direct access from an asphalted road with little traffic.
The sea is about 3 km away, and the center of Civitanova is about 4 km away.

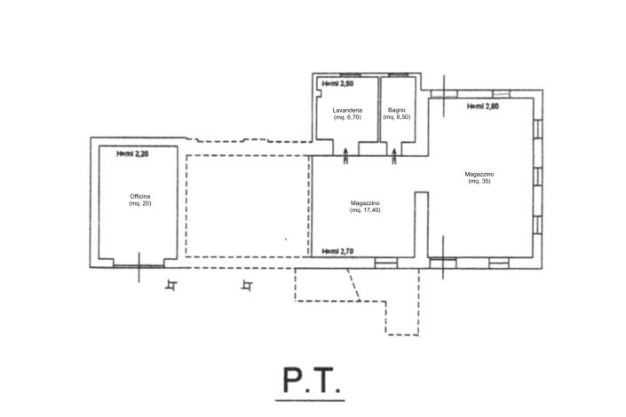
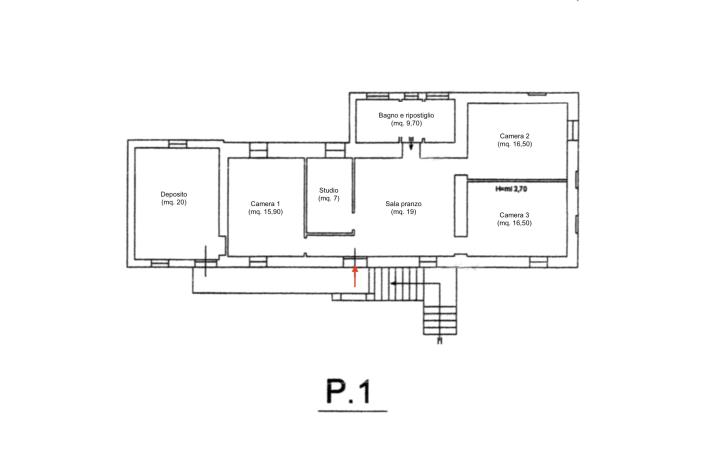
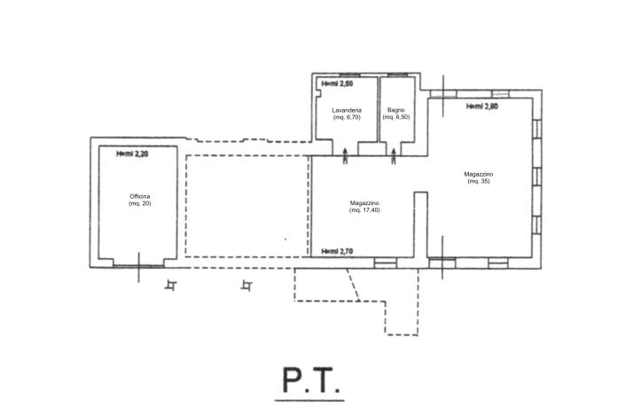
DIVISION OF ROOMS AND REAL SURFACES

Ground floor:
Living room with fireplace sqm. 15.30;
Kitchen sqm. 8.20;
Warehouse 1 sqm. 17.40;
Warehouse 2 sqm. 35.00;
Laundry sqm. 6.70;
Bathroom sqm. 6.50;
Workshop sqm. 20.00;

First floor:
Entrance sqm. 2.90;
Dining room with fireplace sqm. 19.00;
Room 1 sqm. 15.90;
Room 2 sqm. 16.50;
Room 3 sqm. 16.50;
Bathroom and closet sqm. 9.70;
Deposit sqm. 20.00.

The property is completed by the warehouses of approx. 240 and the barn of approx. 140.

In order to be able to organize a constructive appointment with our Agent, please ask us in advance for all the information you deem necessary to obtain a sufficiently clear picture of the property. For more information you can contact the number 335/5414826 or write to here

QUATTROPARETI is a reality present in the area for over 40 years, specializing in quality residences.
We are looking for PROPERTIES for SALE for our customers, if you want to sell contact us immediately
Plus

La carte peut ne pas indiquer l'emplacement exact

Cette annonce immobilière (réf: CASTELLETTA) est fournie par Quattropareti.com et ne constitue pas nécessairement une description précise d’un bien particulier. Bien que aplaceinthesun.com (APITS Ltd.) demande à tous les annonceurs de fournir des informations correctes, il ne vérifie pas les informations fournies et ne peut être tenu responsable pour quelque erreur que ce soit. Aplaceinthesun.com recommande de solliciter un avis juridique indépendant avant tout achat de bien immobilier à l'étranger.