Premium New development
Retour aux Résultats

Villa de 3 chambres à vendre à Ag Triada

Ag Triada, Rethymnon, Crète, Grèce

€500 000  [£436 529]

Villa de 3 chambres à vendre à Ag Triada

Ag Triada, Rethymnon, Crète, Grèce

€500 000  [£436 529]

Détails du bien immobilier


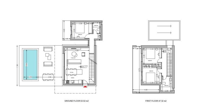
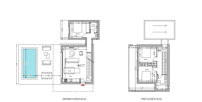
  • Chambres: 3
  • Salles de bain: 3
  • Consommation: A
  • Surface du terrain: 2000 m2
  • Surface habitable: 100 m2

Description complète


Located in a prime position with breathtaking views over Agia Triada and the endless blue of the Aegean, this elegant 100?sq.m. villa offers the ideal combination of refined aesthetics, privacy, and comfort.

Part of a small, thoughtfully designed project, the villa is set on a private 2,000?sq.m. plot and features three bedrooms, three bathrooms, and spacious, light-filled interiors that blend seamlessly with the natural surroundings. Natural materials, modern architectural lines, and large openings create an atmosphere of tranquility and style, perfect for year-round living or relaxing holidays.

Priced at €500,000, this residence combines luxury with excellent investment potential — suitable for private use or tourist exploitation. The limited availability and sought-after location further enhance the value of the property.

A unique opportunity to enjoy peace, privacy, and quality living in an exceptional setting.
Plus

La carte peut ne pas indiquer l'emplacement exact

Cette annonce immobilière (réf: 9235993674) est fournie par Domisi Development SA et ne constitue pas nécessairement une description précise d’un bien particulier. Bien que aplaceinthesun.com (APITS Ltd.) demande à tous les annonceurs de fournir des informations correctes, il ne vérifie pas les informations fournies et ne peut être tenu responsable pour quelque erreur que ce soit. Aplaceinthesun.com recommande de solliciter un avis juridique indépendant avant tout achat de bien immobilier à l'étranger.