Premium New development
Retour aux Résultats

Propriété de 2 chambres à vendre à Loule

Loule, Algarve, Portugal

€64 000  [£55 876]

Propriété de 2 chambres à vendre à Loule

Loule, Algarve, Portugal

€64 000  [£55 876]

Détails du bien immobilier


  • Chambres: 2
  • Salles de bain: 1
  • Surface du terrain: 50 m2
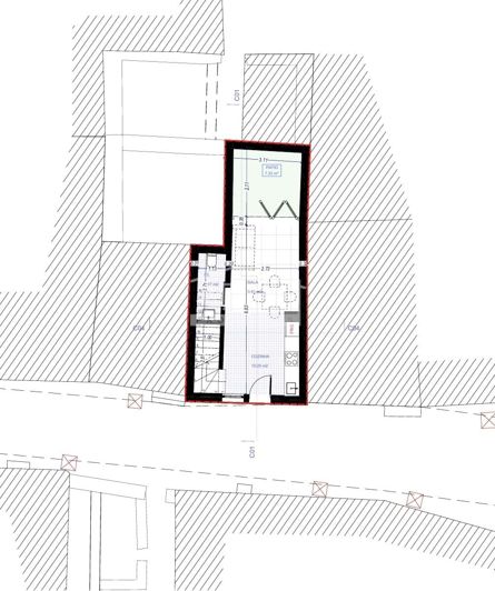
  • Surface habitable: 87 m2

Description complète


Imaginez construire votre retraite idéale au cur de Benafim, un village traditionnel niché dans les collines pittoresques de Loulé. Ce projet entièrement approuvé vous donne la possibilité de créer une élégante résidence de deux étages avec un patio privé clos pour les repas en plein air et une terrasse sur le toit ensoleillée pour profiter dune vue panoramique sur la campagne.

Que vous envisagiez une maison paisible ou une location de vacances génératrice de revenus, cette propriété allie charme rustique et potentiel moderne.

Située dans le centre de Benafim, la propriété bénéficie dun accès facile aux commodités essentielles, notamment une banque, un supermarché, des restaurants locaux et des magasins, le tout à distance de marche. Que vous soyez à la recherche dune résidence à temps plein, dune escapade de vacances ou dun investissement locatif en Algarve, ce projet combine une vie de village authentique avec un potentiel moderne.

Cette maison est lun des cinq projets approuvés à vendre dans la même rue, et peut être combinée avec une ou toutes les autres propriétés pour former une maison plus grande.

Des prix compétitifs pour attirer les investisseurs passionnés et les constructeurs de maisons désireux de donner vie à une maison de rêve dans lune des régions les plus recherchées du Portugal.

Veuillez noter quil sagit dun projet approuvé et quil ninclut pas le coût de construction de la propriété.

Plus

La carte peut ne pas indiquer l'emplacement exact

Cette annonce immobilière (réf: 1001-2378) est fournie par Azul Properties et ne constitue pas nécessairement une description précise d’un bien particulier. Bien que aplaceinthesun.com (APITS Ltd.) demande à tous les annonceurs de fournir des informations correctes, il ne vérifie pas les informations fournies et ne peut être tenu responsable pour quelque erreur que ce soit. Aplaceinthesun.com recommande de solliciter un avis juridique indépendant avant tout achat de bien immobilier à l'étranger.