Premium New development
Retour aux Résultats

Maison / Villa de 3 chambres à vendre à Tombs of the Kings

Tombs of the Kings, Paphos, Chypre

€740 000  [£646 063]

Maison / Villa de 3 chambres à vendre à Tombs of the Kings

Tombs of the Kings, Paphos, Chypre

€740 000  [£646 063]

Détails du bien immobilier


  • Chambres: 3
  • Salles de bain: 3
  • Consommation: A
  • Surface du terrain: 317 m2
  • Surface habitable: 180 m2

Description complète


This exquisite three-bedroom luxury villa embodies modern coastal living with its distinctive triangular architecture and exceptional features. The design emphasizes expansive open-plan interiors and a bold geometric form that seamlessly combines aesthetic appeal with practical comfort. Located in a highly desirable area close to premier amenities such as shops, fine dining establishments, private schools, and the renowned Venus Beach, the property offers an ideal blend of convenience and elegance.

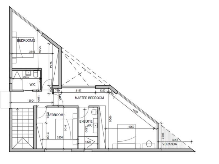
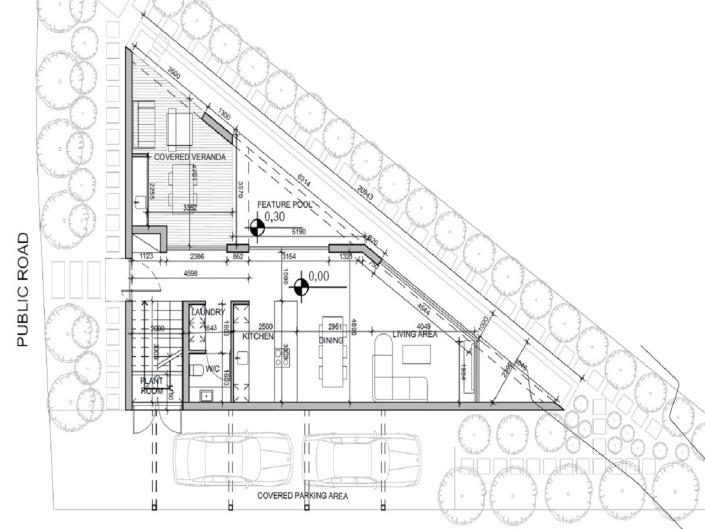
The ground floor welcomes residents and guests with a spacious living and dining area that flows naturally into a sleek, contemporary kitchen, complemented by a guest WC and a dedicated utility room. A highlight of the villa is the stunning swimming pool, which extends gracefully from a covered veranda into the indoor living space, creating a harmonious indoor-outdoor connection perfect for relaxation and entertainment. Upstairs, the residence continues to impress with two generously-sized bedrooms sharing a modern bathroom, including a luxurious master suite equipped with en-suite facilities.

Constructed with high-end finishes and attention to detail, the villa boasts features such as high ceilings reaching 3.10 meters and high doors at 2.40 meters, enhancing the sense of space and openness. Environmental sustainability and energy efficiency are prioritized through a photovoltaic system with solar panels, full thermal insulation, and energy-efficient slimline aluminum frames that meet Energy Efficiency Category A standards. Comfort is further ensured with a water-based underfloor heating system divided into separate zones, a sophisticated VRV cooling system for customizable climate control, and a comprehensive security setup including alarm and CCTV cameras.

Additional amenities include private parking with electric gates and provisions for an electric car charger, a barbecue area designed for outdoor gatherings, and practical features such as a storage and plant room, a water pressure system, and filters under the kitchen. The bathrooms are equipped with walk-in showers, safety glass, and wall-mounted toilets, combining convenience with modern aesthetics. This villa is not just a luxurious residence but a statement of sophisticated design, architectural innovation, and an exceptional lifestyle, offering a perfect retreat amidst natural beauty and technological excellence.

Additional Details

* Internal Area: 154.00 m²
* Covered Verandas: 26.00 m²
* Covered Area: 180.00 m²
* Parking: Covered Parking
* Address: Tombs Of the Kings, Paphos, Cyprus
* Distance From Beach: 150 m
* Distance From Shops: 500 m
* Distance From City Centre: 3 Km
* Distance From Airport: 15 Km
* Distance From University: 3.3 Km
* Distance From School: 300 m
* Distance From Hospital: 2.5 Km

Features

* Alarm System
* BBQ area
* Concealed VRV System
* Covered Parking
* Custom Kitchen Designs
* Electric Gates
* Energy Efficiency A
* Landscaped Garden
* Modern Design
* Open Plan Design
* Photovoltaic System
* Prime Location
* Swimming Pool
* Underfloor Heating
* Walking Distance to Amenities
* Walking Distance to Beach

For more information, pictures, and viewing please contact us.

Cyprus Golden Properties
Registered and Licensed Real Estate Agency: License No. 632, Registration No. 1214
Plus

La carte peut ne pas indiquer l'emplacement exact

Cette annonce immobilière (réf: RH-13494) est fournie par Cyprus Golden Properties et ne constitue pas nécessairement une description précise d’un bien particulier. Bien que aplaceinthesun.com (APITS Ltd.) demande à tous les annonceurs de fournir des informations correctes, il ne vérifie pas les informations fournies et ne peut être tenu responsable pour quelque erreur que ce soit. Aplaceinthesun.com recommande de solliciter un avis juridique indépendant avant tout achat de bien immobilier à l'étranger.