Premium New development
Retour aux Résultats

Propriété de 3 chambres à vendre à Andalousie

Andalousie, Espagne

€120 000  [£104 767]

Propriété de 3 chambres à vendre à Andalousie

Andalousie, Espagne

€120 000  [£104 767]

Détails du bien immobilier


  • Chambres: 3
  • Salles de bain: 1
  • Surface habitable: 94 m2

Description complète


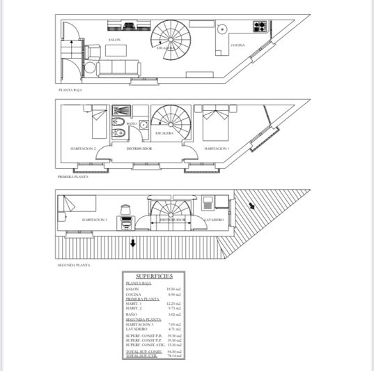
This is a perfectly presented home with every space well thought out and used, built in 2005

Set right in the heart of Zahara de la Sierra pueblo blanco , this three bedroom house currently runs well as a licensed casa rural.

Steps lead from the street door to a wood and glass vestibule .
The ground floor is open plan with cosy lounge area complete with open fireplace , a breakfast bar and a hand built rustic style kitchen with a large pantry cupboard bestowing at the far end , all the wood and metal furniture was custom built to fit the spaces and two good sized windows give glimpses out to the views .

a Stunning feature spiral stair case then leads up to the first floor which comprises of a lovely light master bedroom which has a balcony and built in wardrobes .

A very neat bathroom again in the rustic style it has a shower , a built sink unit a loo and bidet plus deep tiled shelves in a nook .

The second double bedroom also has made to measure wooden built in wardrobe and light floods in from the window .

on the top level under the slopped roof is a third single bedroom again with built in wardrobe .There is a well organised laundry on this level too .
Plus

La carte peut ne pas indiquer l'emplacement exact

Cette annonce immobilière (réf: 18577-AM460) est fournie par Olvera Properties et ne constitue pas nécessairement une description précise d’un bien particulier. Bien que aplaceinthesun.com (APITS Ltd.) demande à tous les annonceurs de fournir des informations correctes, il ne vérifie pas les informations fournies et ne peut être tenu responsable pour quelque erreur que ce soit. Aplaceinthesun.com recommande de solliciter un avis juridique indépendant avant tout achat de bien immobilier à l'étranger.