Premium New development
Retour aux Résultats

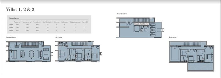
Villa de 3 chambres à vendre à Ayia Napa

Ayia Napa, Famagusta, Chypre

€3 650 000  [£3 186 660]

Villa de 3 chambres à vendre à Ayia Napa

Ayia Napa, Famagusta, Chypre

€3 650 000  [£3 186 660]

Détails du bien immobilier


  • Chambres: 3
  • Salles de bain: 3
  • Surface du terrain: 2070 m2
  • Surface habitable: 369 m2

Description complète


Luxury Seafront 3-Bedroom Villa in Ayia Napa

Prestigious 3-bedroom seafront villa with 369 m² of covered space, private roof garden, and guest WC—set on a 2070 m² plot just steps from the beach in Ayia Napa.

Off plan
Estimated delivery: Q1 2027.
Price subject to VAT (5% VAT may apply under qualifying criteria).

Key Features:
??? Bedrooms: 3
?? Bathrooms: 3
?? Guest WC
?? Covered area: 369 m²
?? Roof garden: 70 m²
?? Plot size: 2070 m²
??? Covered parking included

Distances to Key Amenities:
??? Beach – 0 km
??? Shops – 1 km
??? Restaurants – 1 km
?? School – 5 km
?? Airport – 35 km

Set in a privileged seafront location on the eastern edge of Ayia Napa, this off-plan villa offers a rare combination of expansive living, refined design, and direct access to the Mediterranean coastline. Surrounded by natural beauty and just moments from the buzz of coastal life, the property is ideal for those seeking a luxurious permanent residence or a high-end holiday escape.

The villa features 369 m² of covered living space, thoughtfully arranged across three spacious bedrooms, three bathrooms, and a guest WC. A private 70 m² roof garden provides panoramic sea views and a serene outdoor retreat, while the generous 2070 m² plot ensures privacy, comfort, and space for landscaping or leisure.

Designed with contemporary elegance and practical functionality, the residence includes premium finishes, secure gated access, and covered parking. Delivery is expected within 16 months from signing, and the price is subject to VAT.

Located just steps from the beach and within walking distance of shops and restaurants, the villa also offers convenient access to schools (5 km) and the international airport (35 km).
Plus

La carte peut ne pas indiquer l'emplacement exact

Cette annonce immobilière (réf: CAT-OSFV3) est fournie par Sunshine Luxury Villas et ne constitue pas nécessairement une description précise d’un bien particulier. Bien que aplaceinthesun.com (APITS Ltd.) demande à tous les annonceurs de fournir des informations correctes, il ne vérifie pas les informations fournies et ne peut être tenu responsable pour quelque erreur que ce soit. Aplaceinthesun.com recommande de solliciter un avis juridique indépendant avant tout achat de bien immobilier à l'étranger.