Premium New development
Retour aux Résultats

Ferme de 7 chambres à vendre à Cortona

Cortona, Arezzo, Toscane, Italie

€920 000  [£803 213]

Ferme de 7 chambres à vendre à Cortona

Cortona, Arezzo, Toscane, Italie

€920 000  [£803 213]

Détails du bien immobilier


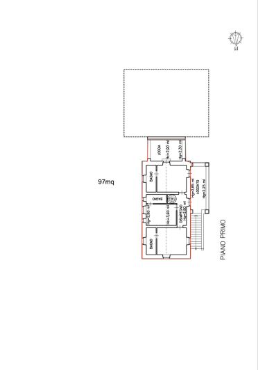
  • Chambres: 7
  • Salles de bain: 5
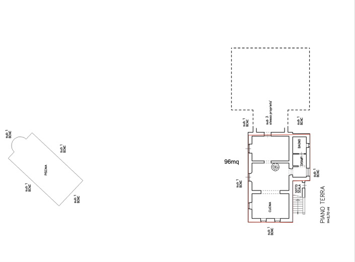
  • Surface du terrain: 10000 m2
  • Surface habitable: 311 m2

Description complète


Colonica Miramonti
Nestled in the beautiful valley at the foot of Cortona, Colonica Miramonti is a residence that effortlessly blends the charm of traditional Tuscan architecture with the functionality of modern living solutions. A new construction, crafted with great attention to the context and local materials, it offers unforgettable views of the surrounding hills, in an atmosphere of peace and harmony.

The property extends over approximately 330 square meters on two levels, with spacious and well-organized spaces that welcome and amaze. The common areas include a large living room featuring a welcoming relaxation area, a spacious dining room perfect for entertaining and socializing, and a modern and functional eat-in kitchen, directly connected to the outside. The seven bedrooms, all designed with a captivating blend of modern and traditional elements, offer comfortable and well-proportioned spaces, while the five spacious bathrooms, complete with every comfort, guarantee maximum practicality and privacy.

Outside, the farmhouse is surrounded by approximately 10,000 square meters of land, with large green areas inviting relaxation and conviviality. The fenced courtyard, enhanced by a splendid panoramic swimming pool, is the ideal place to fully enjoy the Tuscan landscape and climate. A charming pergola, perfect for al fresco lunches and dinners in the warmer months, and a panoramic balcony offering breathtaking views of the surrounding countryside are also featured. Access to the property is made easy and private thanks to a convenient electric gate.

Technical features and details for maximum livability include a private 90-meter-deep well, an alarm system, security grilles on the ground floor windows, mosquito screens on all fixtures, air conditioning on the upper floor, Wi-Fi throughout the house, and an efficient heating system with a latest-generation pellet boiler, with natural gas coming soon.

Colonica Miramonti is much more than a home: it's an authentic experience, an exclusive oasis just minutes from Cortona and its amenities, where you can fully experience the beauty and tranquility of the Tuscan countryside without sacrificing comfort and modernity.
Plus

La carte peut ne pas indiquer l'emplacement exact

Cette annonce immobilière (réf: C030) est fournie par Cortona Immobiliare Real Estate et ne constitue pas nécessairement une description précise d’un bien particulier. Bien que aplaceinthesun.com (APITS Ltd.) demande à tous les annonceurs de fournir des informations correctes, il ne vérifie pas les informations fournies et ne peut être tenu responsable pour quelque erreur que ce soit. Aplaceinthesun.com recommande de solliciter un avis juridique indépendant avant tout achat de bien immobilier à l'étranger.