Premium New development
Retour aux Résultats

Villa de 3 chambres à vendre à Peyia

Peyia, Paphos, Chypre

€590 000  [£515 104]

Villa de 3 chambres à vendre à Peyia

Peyia, Paphos, Chypre

€590 000  [£515 104]

Détails du bien immobilier


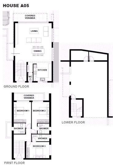
  • Chambres: 3
  • Salles de bain: 4

Description complète


3 Bedroom Detached Villa For Sale in Peyia, Paphos with Title Deeds (New Build Process)

Nestled in the serene heart of Peyia, Paphos, an exclusive collection of 26 exquisite 3-4 bedroom villas. Each villa is designed to harmonize with the surrounding olive groves, offering a perfect blend of modern luxury and natural beauty. Villas will have 3-4 spacious bedrooms, underfloor heating, solar photovoltaic system and a roof garden. The house is also host to a swimming pool and a smart home system. This villa is perfect for those seeking a modern and spacious living space in a prime location, the established family, the young professional or the luxury buyer. Plus, with a separate title deed, you have peace of mind for ownership.

- 3 Spacious Bedrooms

- 4 Bathrooms (Villa A01 has 3 bathrooms)

- Open plan living - dining - kitchen area

- Unfurnished

- Photovoltaic Panels

- Underfloor heating

- Private Swimming Pool

- Smart Home System

- Roof Garden

- Private Car Parking

- Internal 149m² - 171m²

- Covered Veranda 4m² - 32m²

- Uncovered Veranda 26m² - 78m²

- Plot 299m² - 404m²

- 8 minutes to Coral Bay Blue Flag appointed beach with its wide selection of restaurants, bars and amenities

- 45 minutes to Paphos International Airport

- 35 minutes to the nearest golf course

- Suitable for Cyrus Permanent Residency

- Subject to VAT

- Energy Efficiency A

Peyia

Peyia (also spelt Pegeia) is located 14km north of Paphos Town and sits on the steep slopes of the coastal hills inland from Coral Bay at the southern end of the Akamas Peninsula. This is home to many non-Cypriot residents and due to the size of this popular village you will find most conveniences are catered for. As the largest village in Paphos bordering Kathikas, Akoursos, Kissonerga and the Akamas Peninsular there is plenty to do here including swimming at the renowned Blue Flag awarded Coral Bay Beach.
Plus

La carte peut ne pas indiquer l'emplacement exact

Cette annonce immobilière (réf: 12749741) est fournie par Cyprus Emerald et ne constitue pas nécessairement une description précise d’un bien particulier. Bien que aplaceinthesun.com (APITS Ltd.) demande à tous les annonceurs de fournir des informations correctes, il ne vérifie pas les informations fournies et ne peut être tenu responsable pour quelque erreur que ce soit. Aplaceinthesun.com recommande de solliciter un avis juridique indépendant avant tout achat de bien immobilier à l'étranger.