Premium New development
Retour aux Résultats

Villa de 4 chambres à vendre à Coin

Coin, Malaga, Andalousie, Espagne

€649 000  [£566 614]

Villa de 4 chambres à vendre à Coin

Coin, Malaga, Andalousie, Espagne

€649 000  [£566 614]

Détails du bien immobilier


  • Chambres: 4
  • Salles de bain: 4
  • Surface du terrain: 600 m2
  • Surface habitable: 223 m2

Description complète


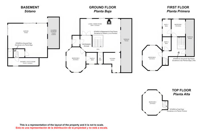
Ce magnifique chalet indépendant de 4 chambres et 4 salles de bains est situé dans un lotissement calme et prisé, à seulement 5 minutes de Coín et à moins de 30 minutes des plages de La Cala de Mijas et Marbella. Cette maison offre espace, confort et un emplacement privilégié.

Construite sur trois étages, la propriété offre des options de vie flexibles, avec le rez-de-chaussée abritant un garage, un débarras et une salle de bains avec douche qui pourrait facilement être transformée en un appartement indépendant pour les invités, la famille ou pour générer des revenus locatifs.

Le niveau principal est lumineux et accueillant, avec un grand salon-salle à manger doté d'une cheminée chaleureuse. De là, les portes mènent directement à une fabuleuse terrasse avec vue sur la piscine et les jardins, un cadre idéal pour dîner en plein air ou simplement se détendre au soleil. La cuisine moderne, entièrement équipée, est élégante et pratique, et cet étage comprend également des toilettes pour les invités et une chambre confortable avec sa propre salle de bains, parfaite pour les visiteurs ou les membres de la famille qui préfèrent vivre sur un seul niveau.

À l'étage supérieur, la généreuse suite principale dispose d'un balcon privé avec des vues ouvertes impressionnantes, ainsi que de sa propre salle de bains. Une autre chambre double et une élégante salle de bains familiale complètent cet étage. Le dernier étage abrite la quatrième chambre, qui offre une sensation d'intimité et des vues panoramiques impressionnantes sur les environs.

L'espace extérieur est aussi attrayant que l'intérieur. Le jardin, très bien entretenu, dispose de plusieurs zones de repos où l'on peut profiter du soleil toute la journée, tandis que la piscine privée et les terrasses environnantes sont l'endroit parfait pour se rafraîchir et recevoir amis et famille.

L'agent immobilier, agissant au nom du vendeur, fournit ces informations à titre indicatif uniquement et sans engagement contractuel. Bien que tous les efforts aient été faits pour garantir l'exactitude des informations, les acheteurs sont invités à vérifier tous les détails par leurs propres inspections et enquêtes. Les données peuvent être sujettes à des erreurs, des changements de prix, des disponibilités ou des retraits sans préavis.
Plus

La carte peut ne pas indiquer l'emplacement exact

Cette annonce immobilière (réf: V5159266) est fournie par Ideal Country Property et ne constitue pas nécessairement une description précise d’un bien particulier. Bien que aplaceinthesun.com (APITS Ltd.) demande à tous les annonceurs de fournir des informations correctes, il ne vérifie pas les informations fournies et ne peut être tenu responsable pour quelque erreur que ce soit. Aplaceinthesun.com recommande de solliciter un avis juridique indépendant avant tout achat de bien immobilier à l'étranger.