Premium New development
Retour aux Résultats

Terrain à vendre à Silves

Silves, Algarve, Portugal

€1 100 000  [£960 363]

Terrain à vendre à Silves

Silves, Algarve, Portugal

€1 100 000  [£960 363]

Détails du bien immobilier


  • Chambres: 0
  • Salles de bain: 0
  • Surface du terrain: 6510 m2

Caractéristiques


  • Double Verre

Description complète


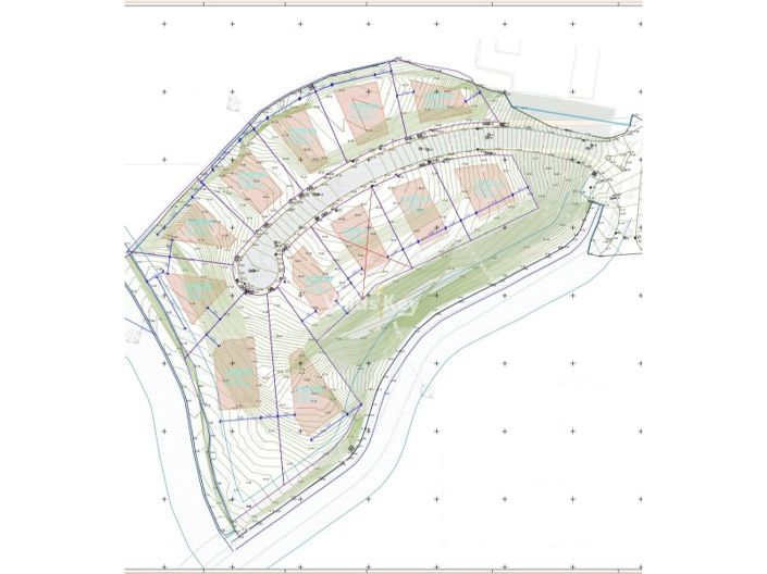
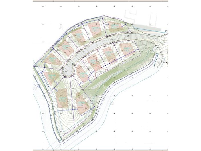
Venez découvrir ce lotissement urbain composé de 11 terrains constructibles, situé aux abords de la magnifique ville historique et médiévale de Silves.
Les 11 parcelles individuelles varient de 450 m² (la plus petite) à 1 245 m² (la plus grande).
Ce lotissement, presque entièrement équipé, d'une superficie totale de 6 510 m², est vendu dans son ensemble, ce qui signifie que les 11 lots sont vendus ensemble au prix affiché.
Le propriétaire a préparé un plan d'architecte pour ce lotissement, qui prévoit la construction de 11 maisons duplex de deux et trois chambres avec piscine, jardin et garage. Ce plan peut être utilisé ou non par l'acheteur, sous réserve de négociation.
Venez visiter !
Remarque :
Zones des lots : lote 1 - 450m2 ; lote 2-520 m2 ; lote 3 - 490 m2 ; lote 4 - 500 m2 ; lote 5 - 510 m2 ; lote 6 - 525 m2 ; lote 7 - 1245 m2 ; lote 8 - 835 m2 ; lote 9 - 450 m2 ; lote 11 - 500 m2 ; lote 12 - 485 m2
#ref: L458
Plus

La carte peut ne pas indiquer l'emplacement exact

Cette annonce immobilière (réf: L458) est fournie par Villaskey et ne constitue pas nécessairement une description précise d’un bien particulier. Bien que aplaceinthesun.com (APITS Ltd.) demande à tous les annonceurs de fournir des informations correctes, il ne vérifie pas les informations fournies et ne peut être tenu responsable pour quelque erreur que ce soit. Aplaceinthesun.com recommande de solliciter un avis juridique indépendant avant tout achat de bien immobilier à l'étranger.