Premium New development
Retour aux Résultats

Villa de 4 chambres à vendre à Javea

Javea, Alicante, Région de Valence, Espagne

€1 570 000  [£1 370 700]

Villa de 4 chambres à vendre à Javea

Javea, Alicante, Région de Valence, Espagne

€1 570 000  [£1 370 700]

Détails du bien immobilier


  • Chambres: 4
  • Salles de bain: 4
  • Surface du terrain: 1106 m2
  • Surface habitable: 273 m2

Caractéristiques


  • Piscine
  • Double Verre
  • Air Conditionné
  • Espace de Rangement
  • Jardin
  • Certificat de performance énergétique – A
Plus

Description complète


Villa Begamí est une élégante propriété en construction, située dans une rue calme du quartier du Cap Martí de Jávea, un quartier résidentiel bien desservi, idéal pour ceux qui recherchent le calme, l'intimité et la proximité de tous les services.
Avec une conception architecturale moderne et des matériaux de haute qualité, la propriété a été conçue selon la norme de la maison passive, qui garantit un confort thermique exceptionnel, une consommation d'énergie minimale et un certificat d'efficacité énergétique A.
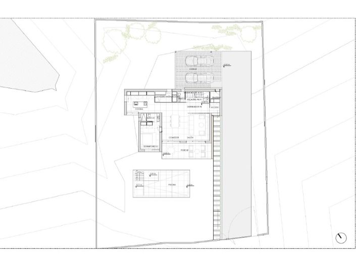
Développée sur un terrain plat de 1 106 m² et orientée plein sud, la villa est répartie sur deux niveaux, avec un accès piéton direct, un parking privé pour deux véhicules et un jardin parfaitement intégré à la maison.
Au rez-de-chaussée (126 m² utiles), nous accédons à un élégant hall avec des toilettes invités. Ensuite, il y a une zone de jour lumineuse avec un salon-salle à manger et une cuisine avec îlot, tous deux avec accès direct au porche couvert et à la piscine. Cet étage comprend également une chambre double avec salle de bain attenante et accès à la terrasse, ainsi qu'une buanderie séparée avec accès à l'arrière.
À l'extérieur, la maison dispose d'un jardin, d'une piscine au niveau du porche, d'un débarras et d'un double parking.
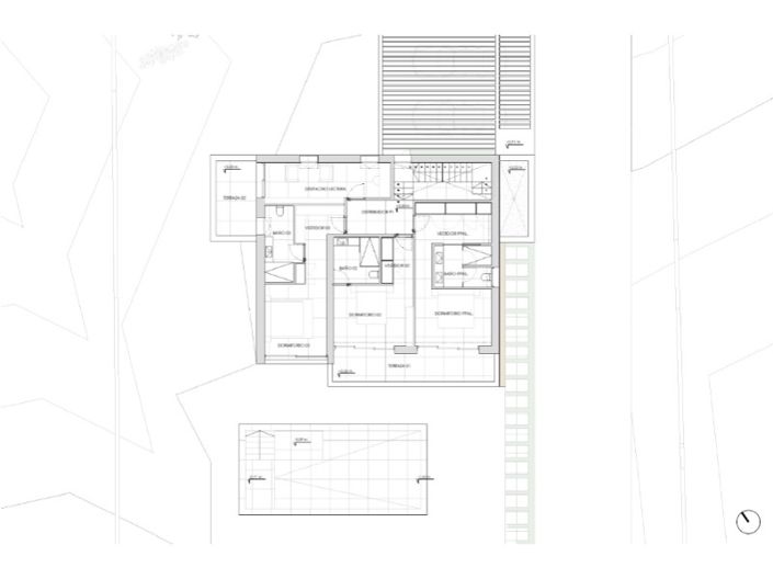
À l'étage supérieur, nous trouvons la chambre principale avec dressing, salle de bain attenante et terrasse privée, deux autres chambres, toutes deux avec salle de bain attenante et dressing, l'une d'entre elles avec accès à la terrasse, ainsi qu'un espace multifonctionnel idéal comme bureau, salle de lecture ou espace de jeux, également avec accès direct à sa propre terrasse.
Pouvez-vous imaginer vivre ici ? Contactez-nous pour plus d'informations ou pour organiser une visite et découvrez en personne tous les détails qui font de cette villa votre maison.
#ref: 1155V
Plus

La carte peut ne pas indiquer l'emplacement exact

Cette annonce immobilière (réf: 1155V) est fournie par Koch & Varelt Luxury Realtors et ne constitue pas nécessairement une description précise d’un bien particulier. Bien que aplaceinthesun.com (APITS Ltd.) demande à tous les annonceurs de fournir des informations correctes, il ne vérifie pas les informations fournies et ne peut être tenu responsable pour quelque erreur que ce soit. Aplaceinthesun.com recommande de solliciter un avis juridique indépendant avant tout achat de bien immobilier à l'étranger.