Premium New development
Back to results

Plot for sale

Loule, Algarve, Portugal

£152,785 *  [€175,000]

Plot for sale

Loule, Algarve, Portugal

£152,785 *  [€175,000]

Property Details


  • Bedrooms: 0
  • Bathrooms: 0
  • Plot size: 6912 m2
  • Habitable space: 50 m2

Features


  • Double Glass
  • Energy performance certificate – Exempt

Full Description


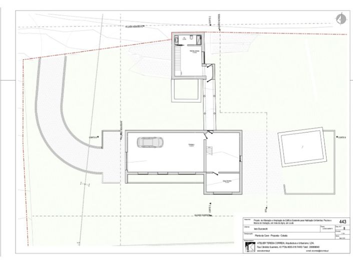
Mixed land located in Fonte Da Arpa in Loulé with a beautiful countryside view facing south receiving the sun all day.
This excellent property consists of rustic land with arable crops, with an area of 6912m2 and a ruin with 2 compartments and basement, with a useful area of 44 m2. The land has a wall and fence as well as a beautiful Nora. It has the approval of the Loulé City Council for the construction of a 280m2 house with a 280m2 basement, that is, a total of 560m2. As visible in the project, the house will be built as an extension of the existing ruin.
Book your visit and come and see this property.
If you are looking for a reliable and experienced company to help you find the property of your dreams, Casas do Sotavento is the right choice. Contact us today to learn more about our products and services.
Energy Rating: Exempt
#ref: CS-TM-86203
Read more

Map may not show exact location

This property listing (ref: CS-TM-86203) is an advertisement supplied by Around the Sun Lda and does not constitute property particulars. While aplaceinthesun.com (APITS Ltd.) requests all advertisers supply correct details, it does not carry out checks on the information supplied and cannot be held responsible for any inaccuracies. Aplaceinthesun.com recommends seeking independent legal advice prior to any overseas property purchase.
*Based on an exchange rate of 0.8731 from Euro to GBP. This rate is updated daily and is an indicative market rate supplied by A Place in the Sun Currency. Actual trading rates vary.