Premium New development
Back to results

Plot for sale

San Miguel, Tenerife, Canary Islands, Spain

£61,114 *  [€70,000]

Plot for sale

San Miguel, Tenerife, Canary Islands, Spain

£61,114 *  [€70,000]

Property Details


  • Bedrooms: 0
  • Bathrooms: 0

Full Description


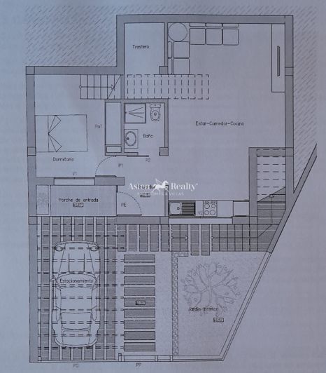
For sale a 160 m2 urban plot with the project to build a single-family home in a rustic environment with impressive views of the ocean and the mountains. The plot is located on La Sabina street in the San Miguel de Abona Municipality. It is an urban part on rustic land, which allows the construction of a house or another type of construction with 2 floors and 15 m deep. It is sold with the approved project of a modern detached house. You need to apply for the license. The plot has electricity and water connection. On one side it adjoins a house, on the other hand there is another free building plot. The rear part is rustic land without building permits, and the front part of the plot faces a paved street with very moderate traffic, well connected to the main roads. The rustic setting, the impressive views of the sea and mountains and the perfect connection to the roads offers the possibility of building a perfect home in an idyllic location.Asten Realty Reference: 8162.
Read more

Map may not show exact location

This property listing (ref: 942391) is an advertisement supplied by ASTEN REALTY and does not constitute property particulars. While aplaceinthesun.com (APITS Ltd.) requests all advertisers supply correct details, it does not carry out checks on the information supplied and cannot be held responsible for any inaccuracies. Aplaceinthesun.com recommends seeking independent legal advice prior to any overseas property purchase.
*Based on an exchange rate of 0.8731 from Euro to GBP. This rate is updated daily and is an indicative market rate supplied by A Place in the Sun Currency. Actual trading rates vary.