Premium New development
Back to results

6 Bed Apartment for sale

Lisciano Niccone, Perugia, Umbria, Italy

£1,309,586 *  [€1,500,000]

6 Bed Apartment for sale

Lisciano Niccone, Perugia, Umbria, Italy

£1,309,586 *  [€1,500,000]

Property Details


  • Bedrooms: 6
  • Bathrooms: 3
  • Plot size: 10000 m2
  • Habitable space: 220 m2

Full Description


Stone farmhouse with garden and swimming pool for sale in Lisciano Niccone, Perugia. Inside a beautiful garden where there are oaks, olive trees, Mediterranean shrubs and a well-kept lawn there is this farmhouse on two levels connected by both external and internal staircaises. The farmhouse has been completely renovated and features all the typical characteristics of the area such as brick arches and exposed wooden beams. The large panoramic terrace enriches the property with an additional outdoor space where it is possible to relax. Thanks to the internal layout of the rooms, the property is suitable not only as a private residence, but also as a tourist facility. The location is excellent as in a few minutes by car you can reach important places such as Perugia, Arezzo, Cortona, Montepulciano and Lake Trasimeno. PROPERTY Ref: LIN1929Location: Lisciano Niccone, Province: Perugia, Region: Umbria.Type: two-story  220 sq m/2.47 sq ft farmhouse +40-sq m/430-sq ft terrace Conditions: excellent, renovated starting from 1989 until 2015Garden: Approx. 1 ha/2.47 acres, fencedSwimming pool: 6 x 12 m and from 1.2 m to 2.4 m deep, with pertinent bathroom and depot; surrounded by sliding glass panelsParking: outdoor, with carportLayout:
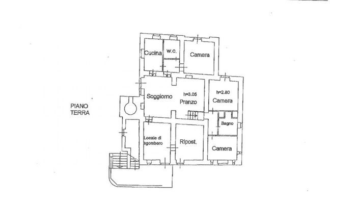
Ground Floor: living room, dining room, kitchen, 3 bedrooms, 2 bathrooms, closet
First Floor: kitchen, dining room, 3 bedrooms, bathroom, porch, terraceDistance to services: 6 kmDistance to main airports: Perugia 44 km, Florence 141 km, Rome 233 kmGravel road: 3 kmUtilities:
Fixed telephone network: available
Wi-Fi: available
Heating: LPG and pellet stoves
Well: artesian, for domestic use and for irrigation
Electricity: availableElectric gate
Video surveillance along the bordersFurniture included in the negotiationThe property is owned by private individuals
The location, for privacy, is approximate
All measurements are approximateEnergy Efficiency Rating: G
Read more

Map may not show exact location

This property listing (ref: LIN1929) is an advertisement supplied by Apolloni & Blom Real Estate and does not constitute property particulars. While aplaceinthesun.com (APITS Ltd.) requests all advertisers supply correct details, it does not carry out checks on the information supplied and cannot be held responsible for any inaccuracies. Aplaceinthesun.com recommends seeking independent legal advice prior to any overseas property purchase.
*Based on an exchange rate of 0.8731 from Euro to GBP. This rate is updated daily and is an indicative market rate supplied by A Place in the Sun Currency. Actual trading rates vary.