Premium New development
Back to results

2 Bed Villa / Detached for sale

Kalymnos, Aegean islands, Greece

£375,415 *  [€430,000]

2 Bed Villa / Detached for sale

Kalymnos, Aegean islands, Greece

£375,415 *  [€430,000]

Property Details


  • Bedrooms: 2
  • Bathrooms: 2
  • Plot size: 310 m2
  • Habitable space: 153 m2

Features


  • Sea View
  • Swimming Pool
  • 130 meters from the sea
  • Electrical Appliances
  • Private Parking
  • 12-14 Months Delivery
Read more

Full Description


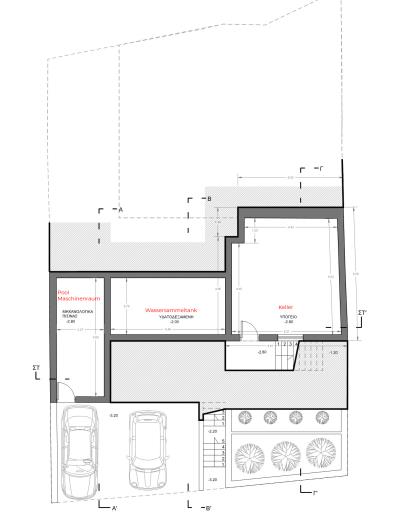
This new villa project is situated in the coastal village of Skalia, on the northwestern side of the island of Kalymnos and just 20 minutes away from the popular village of Massouri. The property features 2 floors and a basement, offering amazing sea view.

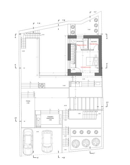
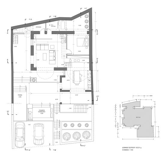
The ground floor (92,2 m²) consists of a bedroom, a living room with open kitchen, a bathroom and a storage room. From here you will be able to access the spacious veranda and the pool area.

The first floor (28,7m²) features a second bedroom, a bathroom,a wardrobe and a stunning sea view veranda.

The property will also have a basement area with a rain water collection system.

Living area: 153.8 m²

Land: 310 m²

Features

Private Swimming Pool
Private Parking
Furnished
Veranda
Sea View
Rain Collector
Services

Distance to sea: 130 m
Port : 17,8 km
Airport : 15,8 km

Price starts from 430.000, which includes the pool,electr.appliances, A/C, cupboards and more.
Read more

Map may not show exact location

This property listing (ref: Kalymnos1) is an advertisement supplied by Solid Estate and does not constitute property particulars. While aplaceinthesun.com (APITS Ltd.) requests all advertisers supply correct details, it does not carry out checks on the information supplied and cannot be held responsible for any inaccuracies. Aplaceinthesun.com recommends seeking independent legal advice prior to any overseas property purchase.
*Based on an exchange rate of 0.8731 from Euro to GBP. This rate is updated daily and is an indicative market rate supplied by A Place in the Sun Currency. Actual trading rates vary.