Premium New development
Back to results

Plot for sale

Sao Bras de Alportel, Algarve, Portugal

£148,420 *  [€170,000]

Plot for sale

Sao Bras de Alportel, Algarve, Portugal

£148,420 *  [€170,000]

Property Details


  • Bedrooms: 0
  • Bathrooms: 0
  • Plot size: 504.65 m2
  • Habitable space: 203.28 m2

Features


  • Double Glass
  • Energy performance certificate – A

Full Description


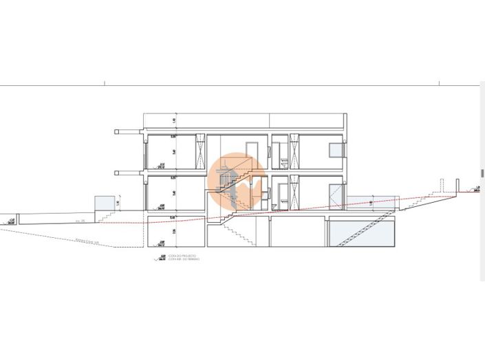
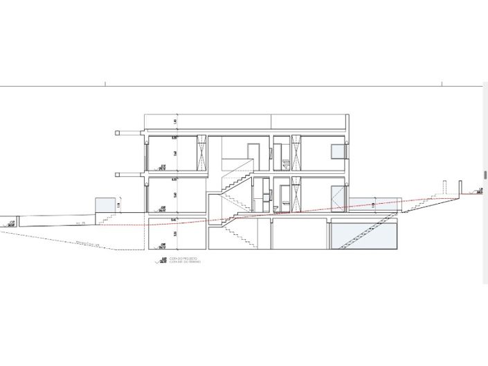
Plot of land with 504.65 m2 with approved project for the construction of a T4 house with basement, inserted in a private condominium with 11 houses, with communal swimming pool.
The construction license was issued on December 9, 2022, valid for 18 months (extendable).
The project will be for a 2-storey house with 4 bedrooms, a 242.48m2 basement, a front and back patio.
With a privileged location for those who like to live in a quiet place, yet just 3 minutes from the center of São Brás and all services and schools.
Come and discover this project and build your dream home!
Total lot area: 504.65m²
Building footprint: 113.25 m²
Covered area (basement + floor 0 + floor 1): 457.98m2
Ground floor (113.25m2)
- Large living room with 51m2
- Kitchen with 15.40m2
- 1 complete bathroom
- 1 Bedroom with 14m2
1st Floor (102.25m2)
- 1 Bedroom with private bathroom and closet (26m2)
- 1 bedroom with wardrobe (17m2)
- 1 Bedroom with wardrobe (14m2)
- 1 complete bathroom
Basement (242.48m2)
- Large basement with the possibility of parking for several cars, not only with access to the interior of the house, as well as direct access to the back patio.
- Storage
- Technical Zone
- Laundry
- Collection
- Garden Area
Penthouse (102.25m2)
Excellent investment opportunity!!
Energy Rating: A
#ref: CS-LOT-91889
Read more

Map may not show exact location

This property listing (ref: CS-LOT-91889) is an advertisement supplied by Around the Sun Lda and does not constitute property particulars. While aplaceinthesun.com (APITS Ltd.) requests all advertisers supply correct details, it does not carry out checks on the information supplied and cannot be held responsible for any inaccuracies. Aplaceinthesun.com recommends seeking independent legal advice prior to any overseas property purchase.
*Based on an exchange rate of 0.8731 from Euro to GBP. This rate is updated daily and is an indicative market rate supplied by A Place in the Sun Currency. Actual trading rates vary.