Premium New development
Back to results

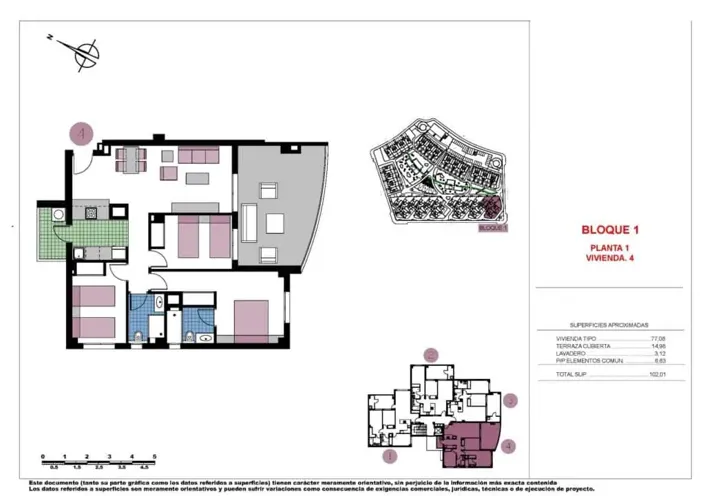
3 Bed Apartment for sale

Mil Palmeras, Alicante, Valencia, Spain

£295,966 *  [€339,000]

3 Bed Apartment for sale

Mil Palmeras, Alicante, Valencia, Spain

£295,966 *  [€339,000]

Property Details


  • Bedrooms: 3
  • Bathrooms: 2
  • Habitable space: 102 m2

Features


  • Private Terrace
  • En-Suite Bathroom
  • Close to Amenities
  • Close to Golf
  • Close to Shops
  • Parking
  • Open Plan Design
  • Close to Sandy Beaches
  • Contemporary Finish
  • Near Beach
  • Near Transport
Read more

Full Description


EXCLUSIVE PACKAGE INCLUDED WITH ALL OUR NEW PROPERTIES.

3 Bed 2 Bath First Floor Apartment in Mil Palmeras Alicante.

PROPERTY OVERVIEW:

Save €6,000 with this property.

Discover a stunning new residential complex in the charming coastal area of Mil Palmeras, offering a selection of high-quality apartments and bungalows designed to meet contemporary living standards. Nestled just 600 meters from the sandy beaches of Mil Palmeras, this development combines comfort, style, and convenience.

Choose from 2 or 3 bedroom apartments, each featuring 2 bathrooms and spacious terraces. Alternatively, opt for bungalows with 2 bedrooms and 2 bathrooms, available in ground-floor units with private gardens or top-floor units with exclusive solariums.

The properties are finished to a high standard with quality fixtures and fittings and attention to detail such as PVC exterior carpentry with thermal break and double-glazed “Climalit” low-emissivity windows, bathrooms equipped with vanities, mirrors, and modern fixtures, built-in wardrobes with interior LED lighting, drawers, and hanging rails and hot water supplied through aerothermal technology for energy efficiency.

Outside this gated community you will be greeted with beautiful landscaped gardens housing luxury communal pools, perfect for cooling off from the 325 days of glorious Mediterranean sunshine.

Optional underground parking spaces and storage rooms are available for added convenience.

PROPERTY LOCATION:

Located between Campoamor and Torre de la Horadada, this superb development offers easy access to local amenities, schools, restaurants, and sports facilities open year-round.

Mil Palmeras is known for its charming town square and its vibrant "restaurant alley," featuring many diverse international cuisines.

For nature enthusiasts, the Lo Monte Nature Park, a protected bird reserve, and the Río Seco Natural Park offer perfect spots for hiking and relaxation.

There are many championship golf courses nearby such as Campoamor Golf, Las Ramblas Golf, and Las Colinas Golf and Country Club, all less than 10 km.

This stunning beach location offers a perfect area, close to many shopping centers, water sports and so much more.

Don’t miss the opportunity to own a property in this exceptional residential complex. Whether you’re looking for a vacation home or a permanent residence, this development in Mil Palmeras has it all. Contact us today for more information or to schedule a visit! Why Choose Movehappy?
We would like to welcome you to Movehappy. We are proud to offer a new innovative and refreshing way to purchase your new dream home in Spain.
All of our new build properties are offered with our unique Movehappy package. This gives you a total saving of up to €18,000. The package consists of Spanish legal services and a furniture voucher.
We have a dedicated, multilingual team to help you and we can organise your property search from start to finish making your purchasing journey enjoyable and stress free.
We are API certified (API Member Number 593) and therefore licensed to practice all real estate services, giving you the greatest peace of mind. Purchasing your property from an API certified agent like Movehappy means you can guarantee you will be greeted with valuable knowledge, honesty and integrity.
Not only that, but there’s also the following:

Established since 2003
Fully registered Spanish Limited Company
Members of AIPP (Association of Property Professionals)
Public liability insurance
Comprehensive after sales service

Start your Spanish property journey with Movehappy today and together we will find the right property for you.
Read more

Map may not show exact location

This property listing (ref: MOHN8577) is an advertisement supplied by Movehappy SL and does not constitute property particulars. While aplaceinthesun.com (APITS Ltd.) requests all advertisers supply correct details, it does not carry out checks on the information supplied and cannot be held responsible for any inaccuracies. Aplaceinthesun.com recommends seeking independent legal advice prior to any overseas property purchase.
*Based on an exchange rate of 0.8731 from Euro to GBP. This rate is updated daily and is an indicative market rate supplied by A Place in the Sun Currency. Actual trading rates vary.