Premium New development
Back to results

2 Bed House for sale

Polski Senovets, Polski Trambesh, Veliko Tarnovo, Bulgaria

£42,900 *  [$57,705]

2 Bed House for sale

Polski Senovets, Polski Trambesh, Veliko Tarnovo, Bulgaria

£42,900 *  [$57,705]

Property Details


  • Bedrooms: 2
  • Bathrooms: 2
  • Plot size: 1170 m2
  • Habitable space: 92 m2

Features


  • WATER
  • ELECTRICITY
  • SHOWER ROOM
  • OUTBUILDINGS
  • PARKING GATE
  • BALCONY
  • SPACIOUS GARDEN
  • WELL
Read more

Full Description


Viewing options: Personal & Online viewing

PRESTIGE HOUSE

A massive two-storey house in the beautiful village of Polski Senovets, with two bedrooms and a well in the garden

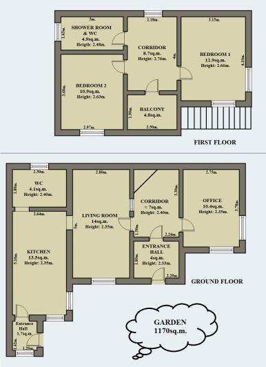
Property area: 1170sq.m.

This fantastic property is situated in the Village of Polski Senovets, beautiful and peaceful settlement in the middle of the Danubian Plain, with close proximity to towns and cities where you can find all necessary amenities and conveniences:

* only 6 miles away from the Municipal Centre

* only 17 miles away from the Town of Byala

* only 20 miles away from the City of Veliko Tarnovo

* only 21 miles from the Town of Pavlikeni

* 46 miles from the City of Ruse

TWO TOILETS - SHOWER ROOM - TWO BEDROOMS - KITCHEN - LIVING ROOM - SPACIOUS GARDEN - WELL - OUTBUILDINGS - PARKING GATE - BALCONY - uPVC WINDOWS & DOORS

Property address

23 Osma Str.

Village of Polski Senovets - District of Veliko Tarnovo

Post Code: 5193

Set on a lovely tree-lined street in the beautiful Village of Polski Senovets and hidden behind a stone wall, providing privacy and seclusion, the Prestige House, with its curb appeal, beautiful classic exterior, fantastic layout and spacious flat garden fully lives up to its name and offers everything one is looking for when choosing a countryside home. You can just add some furniture and move into this amazing property to enjoy laid-back and stress-free rural living.

On the ground floor of the house, you will find an entrance hall with a charming vintage door, a cosy corridor with a fireplace, a room with a lot of natural light that you can use as an office space or convert into an additional bedroom or another type of premise according to your needs, and a bright living room. The living room opens up to a spacious kitchen, partially furnished with kitchen cabinets that you can also use as a dining area. Through the kitchen, you enter a toilet with a boiler in it. The kitchen also conveniently has a separate entrance that you can use. Having all the social areas of the house on one floor creates an inviting atmosphere and provides great space for parties and gatherings.

On the first floor of the house, you will find a balcony with charming stone railings, offering beautiful views of the surrounding landscape, a corridor, two bedrooms filled with natural light and overlooking the property garden, and a shower room with a toilet. The hardwood floors in the corridor and bedrooms exude warmth and welcoming vibes and contribute to the whole floor atmosphere, dedicated to good sleep and peaceful relaxation.

The entrance doors and all the windows are new uPVC.

The property garden is big and flat and offers you plenty of space for all kinds of outdoor activities, BBQ, horticulture, etc. There is a well in the garden, contributing to the rustic and cosy feeling of the place.

Behind the house, there are outbuildings suitable for a workshop or storage space.

There is a parking gate that allows you to park your vehicle inside and there is parking space on the street.

There is water and electricity connected to the property.

The roof is in good condition as shown in the photos.

***Notary deal: The fees for the Notary transfer (deal) are not included in the property price, and they must be paid by the buyer at the end, once the property price is fully paid and prior to the notary deal. They are: 500£ (Notary & Legal Fees) + 5% of the property price (Governmental Fees).
Read more

Map may not show exact location

This property listing (ref: 550) is an advertisement supplied by Mowlem Bulgaria  and does not constitute property particulars. While aplaceinthesun.com (APITS Ltd.) requests all advertisers supply correct details, it does not carry out checks on the information supplied and cannot be held responsible for any inaccuracies. Aplaceinthesun.com recommends seeking independent legal advice prior to any overseas property purchase.
*Based on an exchange rate of 0.8731 from Euro to GBP. This rate is updated daily and is an indicative market rate supplied by A Place in the Sun Currency. Actual trading rates vary.