Premium New development
Back to results

4 Bed Property for sale

Split, Split-Dalmatia, Croatia

£951,633 *  [€1,090,000]

4 Bed Property for sale

Split, Split-Dalmatia, Croatia

£951,633 *  [€1,090,000]

Property Details


  • Bedrooms: 4
  • Bathrooms: 5

Full Description


Super-modern villa os amazing advanced architecture which leaves you astonished!
Le Corbusier would love this villa!
Villa is being constructed in Kaštel Štafilic near Split, at the end of a dead end road, surrounded by fields and soothing nature and only 400 m away from the town center, sea and the beautiful beaches of Kastela.

Gross house area: 214 m2
Net house area: 176 m2 (closed) + 217m2 terrace
Total area of the villa: 393 m2
Land plot is 642 sq.m.

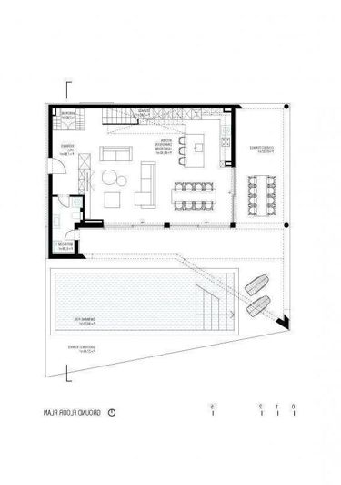
The house consists of three levels.
Ground floor: entrance hall, dressing room, bathroom, living room with kitchen and dining room which is connected by a glass wall with a spacious covered terrace and swimming pool.
1st floor: hallway, master bedroom with dressing and bathroom, three bedrooms, three bathrooms, loggia.
There is also the option to have three bathrooms upstairs and one room to be larger.
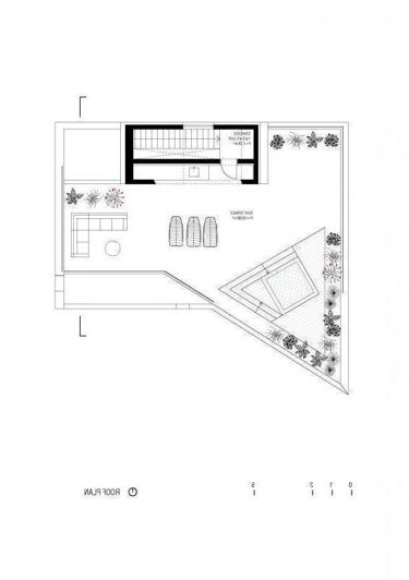
Upper level - the best part of the villa is a roof terrace with jacuzzi, deck chairs and wonderful views. The perfect place to relax and spend an evening enjoying the sunset.

The house is currently in concrete with windows. You can participate in choice of interior design details, style, colour, furniture.
The price of a fully finished and furnished house would be € 890,000. It can be completed in 2022.

In 2021 National Geographic Traveler (UK) organized the “Reader Awards” award and ranked Croatia among TOP three countries in the category “best closer destination”. This award was received for the sixth time in a row, shared with Italy and Greece.
It means that the British travelers, potential buyers of apartments, houses and villas in Croatia are inspired by the idea of future journeys in post-covid reality.
Croatian tourism has shown great results in 2021 despite pandemics, and the prospects are even better for 2022-2023.
Croatia will be awarded in future many times as the most friendly, most relaxed and clean destination for vacation and permanent housing 365 days a year. Ref: RE-LB11153Overall additional expenses borne by the Buyer of real estate in Croatia are around 7% of property cost in total, which includes: property transfer tax (3% of property value), agency/brokerage commission (3%+VAT on commission), advocate fee (cca 1%), notary fee, court registration fee and official certified translation expenses. Agency/brokerage agreement is signed prior to visiting properties.
Read more

Map may not show exact location

This property listing (ref: RE-LB11153) is an advertisement supplied by ADRIONIKA CONSULTANCY and does not constitute property particulars. While aplaceinthesun.com (APITS Ltd.) requests all advertisers supply correct details, it does not carry out checks on the information supplied and cannot be held responsible for any inaccuracies. Aplaceinthesun.com recommends seeking independent legal advice prior to any overseas property purchase.
*Based on an exchange rate of 0.8731 from Euro to GBP. This rate is updated daily and is an indicative market rate supplied by A Place in the Sun Currency. Actual trading rates vary.