Premium New development
Back to results

3 Bed Villa for sale

Moraira, Alicante, Valencia, Spain

£1,305,221 *  [€1,495,000]

3 Bed Villa for sale

Moraira, Alicante, Valencia, Spain

£1,305,221 *  [€1,495,000]

Property Details


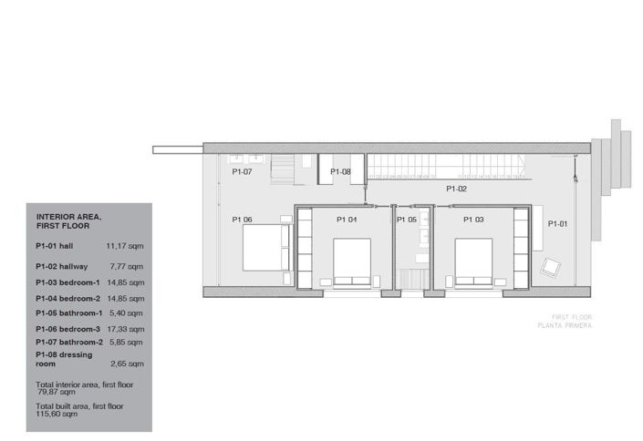
  • Bedrooms: 3
  • Bathrooms: 2
  • Plot size: 1350 m2
  • Habitable space: 193 m2

Features


  • Near the town center
  • Near the beach
  • Terrace
  • Covered terrace
  • Air conditioning duct based
  • Heating electric
  • Open terrace
Read more

Full Description


Modern design villa project with pool and sea views for sale in Moraira El Portet, just 5 minutes drive to the famous sandy beach, El Portet.Excellent location in residencial area with larger then average plots and established infrastructure. The plot is completely flat and has an easy access. From the villa you can enjoy sea views.The project consists of two heights. The day program is located on the diaphanous ground floor, articulated with an interior patio of 38 m2 that can be linked or disconnected from the day area according to the need, thanks to a sliding door. It has a terrace of 100 m2 and a private pool of 10 x 3.5 m.A large volume on the first floor contains the night program with 3 bedrooms. One master bedroom with en-suite bathroom and a second shared bathroom for the other 2 bedrooms.Ducted air conditioning (hot/cold) in all rooms with independent control in each room. Aluminium carpentry with thermal bridge break and double glazing under emissive. Floor tiles in cement gray.Oustanding design by prize-winning architect.Our in-house architect Dalia Alba Our in-inhouse interior designer Luna Alba - Lemon Design StudioDesign Villas Moraira also offers a dedicated construction team
Read more

Map may not show exact location

This property listing (ref: SLV32-1801W) is an advertisement supplied by Sunlife Villas and does not constitute property particulars. While aplaceinthesun.com (APITS Ltd.) requests all advertisers supply correct details, it does not carry out checks on the information supplied and cannot be held responsible for any inaccuracies. Aplaceinthesun.com recommends seeking independent legal advice prior to any overseas property purchase.
*Based on an exchange rate of 0.8731 from Euro to GBP. This rate is updated daily and is an indicative market rate supplied by A Place in the Sun Currency. Actual trading rates vary.