Premium New development
Imagen

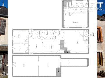
Property for sale in Cromac, France

Sort by
Sort by
Filters
Create an alert
Show as
Show as
Map View

10 property results
Sort by
Show me
Show as

Loading your results...

Sorry, there aren't any properties available matching your search criteria

Please try changing your search options or try one of the following:

Make an enquiry

A Place in the Sun will send the above details on your behalf to AccountName. By submitting this form, you confirm that you agree to our website Terms of Use, our Privacy Policy and consent to cookies being stored on your computer.