Premium New development
Retour aux Résultats

Villa de 3 chambres à vendre à Ayia Napa

Ayia Napa, Famagusta, Chypre

€5 600 000  [£4 889 122]

Villa de 3 chambres à vendre à Ayia Napa

Ayia Napa, Famagusta, Chypre

€5 600 000  [£4 889 122]

Détails du bien immobilier


  • Chambres: 3
  • Salles de bain: 4
  • Surface du terrain: 841 m2
  • Surface habitable: 279 m2

Description complète


Ayia Napa Marina is the new premier yachting destination in the Mediterranean. It offers world-class yachting facilities in a superb Mediterranean island location.

35 luxury villas are located along privately maintained and secured roads on the marina island and the peninsula.

The villa architecture is a contemporary expression of new and old, combining locally quarried stone around the base with sleek plaster volumes cantilevered above. All villas are designed with a modern, open-plan concept, with primary spaces oriented towards the sea.

The lower level opens out into private sunken gardens and courtyards and include kitchenette, bathroom, laundry, storage and an open plan area which can be converted to an additional bedroom or living room or play room.

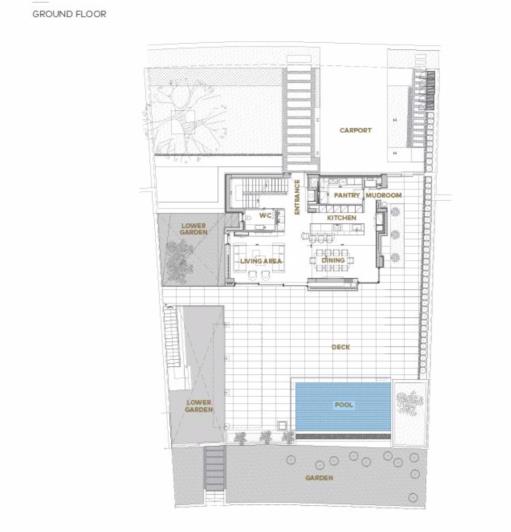
The ground floor includes the main reception area, living and dining rooms, kitchen, guest WC, spacious covered and uncovered verandas.

The first floor
A bedroom level features full-height sliding glass doors that open onto wood-decked covered verandas, allowing in the Mediterranean breeze and views. The bedrooms are all with en-suite bathrooms and covered verandas.

The roof top features a large roof garden area, with kitchen bench and uncovered veranda.

Delivery - 8 month from signing the contract

Price plus VAT

The villa features:
3 bedrooms
4 bathrooms
Guest WC
Covered parking - 2
Plot size - 841 m2
Internal area - 279 m2
Covered verandas - 97 m2
Uncovered verandas - 186 m2
Roof garden - 130 m2
Plus

La carte peut ne pas indiquer l'emplacement exact

Cette annonce immobilière (réf: ANMBV9-3A) est fournie par Sunshine Luxury Villas et ne constitue pas nécessairement une description précise d’un bien particulier. Bien que aplaceinthesun.com (APITS Ltd.) demande à tous les annonceurs de fournir des informations correctes, il ne vérifie pas les informations fournies et ne peut être tenu responsable pour quelque erreur que ce soit. Aplaceinthesun.com recommande de solliciter un avis juridique indépendant avant tout achat de bien immobilier à l'étranger.